
賃貸条件
| 所在階 | 3階〜地下1階 |
|---|---|
| 用途 | 事務所、一棟貸し |
| 面積 | 175.46坪 / 580.03m² |
| 賃料 | 3,181,818円 |
| 共益費 | 賃料に含む |
| 坪単価 | 18,134円/坪(共益費込) |
| 預託金 | 5ヶ月 |
| 入居時期 | 即入居 |
| その他費用 | 償却: 1ヶ月 礼金: なし 更新料・再契約料: 新賃料1ヶ月 |
| トイレ | 男女別 |
物件概要
| 所在地 | 東京都新宿区四谷4丁目19-7 |
|---|---|
| 交通 |
|
| 規模 | 地上3階 / 地下1階 |
| 竣工 | 1990年9月 |
| 耐震基準 | 新耐震基準 |
| 構造 | 鉄筋コンクリート(RC造) |
物件詳細・設備
| エレベーター | 1基 |
|---|---|
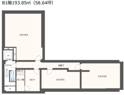
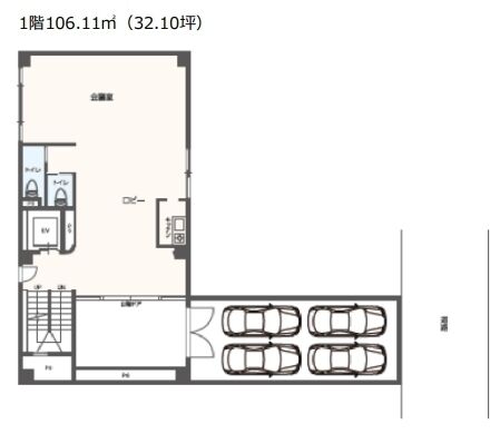
| 駐車場 | あり 平面駐車場4台 |
四谷四丁目1棟空ビルの空室一覧
↓ 募集区画クリックで詳細情報をご覧いただけます
| 募集区画 | 面積 | 用途 | 賃料+共益費 | 坪単価(共益費込) | 入居時期 | 平面図 | お気に入り |
|---|---|---|---|---|---|---|---|
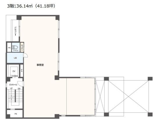
| 地下1階~3階 | 175.46坪 | 事務所、一棟貸し | 3,181,818円 | 18,134円/坪 | 即入居 |
※表⽰⾦額は、敷⾦・保証⾦などの預かり⾦を除き、別途消費税がかかります。 / ※間取図は現況を優先させていただきます。 / ※駐車場は建物設備としての有無のため、有の場合でも賃貸条件としての空きを保証するものではありません。 / ※掲載情報の誤りや変更、未掲載情報の掲載依頼がございましたら、お手数ですが お問い合わせフォームよりご連絡ください。
近隣の条件が近い物件
掲載物件数:2,408件
4,359区画






















