
賃貸条件
| 所在階 | 4階 | 
|---|---|
| 用途 | 事務所 | 
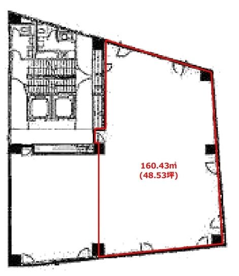
| 面積 | 48.53坪 / 160.43m² | 
| 賃料 | 相談 | 
| 共益費 | 182,910円 | 
| 坪単価 | - | 
| 預託金 | 12ヶ月 | 
| 入居時期 | 即入居 | 
| その他費用 | 償却: なし 礼金: なし 更新料・再契約料: なし  | 
| トイレ | 男女別 | 
物件概要
| 所在地 | 東京都渋谷区代々木2丁目13-4 | 
|---|---|
| 交通 | 
  | 
| 規模 | 地上9階建て | 
| 竣工 | 1988年8月 | 
| 耐震基準 | 新耐震基準 | 
| 構造 | 鉄骨鉄筋コンクリート(SRC造) | 
| 基準階坪数 | 71.29坪 | 
| 基準階天井高 | 2,450mm | 
物件詳細・設備
| エレベーター | 2基 | 
|---|---|
| 駐車場 | なし | 
| 情報通信設備 | 光ファイバー | 
| 空調 | 個別空調 | 
| セキュリティ | 機械警備 | 
※表⽰⾦額は、敷⾦・保証⾦などの預かり⾦を除き、別途消費税がかかります。 / ※間取図は現況を優先させていただきます。 / ※駐車場は建物設備としての有無のため、有の場合でも賃貸条件としての空きを保証するものではありません。 / ※掲載情報の誤りや変更、未掲載情報の掲載依頼がございましたら、お手数ですが お問い合わせフォームよりご連絡ください。
近隣の条件が近い物件
掲載物件数:2,264件
 4,128区画

















建物詳細
新中央ビル(渋谷区代々木2丁目)は、新宿駅徒歩4分の賃貸オフィスビルです。
建物の規模は地上9階建て、竣工は1988年8月(新耐震基準)です。エレベーターは2基あります。
基準階貸室面積は約71.29坪、天井高は2450mmです。機械警備・個別空調・OAフロア・男女別トイレなどの設備仕様です。
最新の空室状況や賃料・賃貸条件など、お気軽にお問合せ下さい。