NEW

灯ビル 3階

最終情報更新日:2025/12/10
ビルコード:1310400670
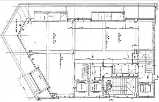
灯ビル 3階 平面図

賃貸条件

所在階3階
用途店舗
面積40.54坪 / 134.01m²
賃料932,420円
共益費121,620円
坪単価26,000円/坪(共益費込)
預託金1,000,000円
入居時期相談
その他費用償却: なし
礼金: なし
更新料・再契約料: なし

物件概要

所在地東京都新宿区歌舞伎町1丁目26-6
交通
  • 西武新宿線 西武新宿駅 1分
  • JR山手線 新宿駅 4分
規模地上9階 / 地下1階
竣工1978年12月
構造鉄骨鉄筋コンクリート(SRC造)

物件詳細・設備

エレベーター2基
情報通信設備光ファイバー
空調個別空調

灯ビルの空室一覧

↓ 募集区画クリックで詳細情報をご覧いただけます

募集区画面積用途賃料+共益費坪単価(共益費込)入居時期平面図お気に入り
3階60.84坪店舗1,825,200円30,000円/坪即入居
NEW3階40.54坪店舗1,054,040円26,000円/坪相談

※表⽰⾦額は、敷⾦・保証⾦などの預かり⾦を除き、別途消費税がかかります。 / ※間取図は現況を優先させていただきます。 / ※駐車場は建物設備としての有無のため、有の場合でも賃貸条件としての空きを保証するものではありません。 / ※掲載情報の誤りや変更、未掲載情報の掲載依頼がございましたら、お手数ですが お問い合わせフォームよりご連絡ください。

近隣の条件が近い物件

東京都新宿区西新宿7丁目5-8

地上10階建て

41.37坪

都営大江戸線 新宿西口駅 5分

東京都新宿区新宿3丁目12-7(未定)

地上12階建て

39.58坪 〜 44.62坪

東京メトロ丸ノ内線 新宿三丁目駅 1分

東京都新宿区西新宿2丁目1-1

地上55階 / 地下3階

37.31坪 〜 41.72坪

都営大江戸線 都庁前駅 1分

東京都新宿区新宿5丁目16-11

地上9階 / 地下1階

43.67坪

東京メトロ丸ノ内線 新宿三丁目駅 3分

東京都新宿区西新宿1丁目5-11

地上9階 / 地下1階

45.62坪

JR山手線 新宿駅 1分

東京都新宿区西新宿1丁目26-2

地上50階 / 地下5階

36.24坪

JR山手線 新宿駅 7分

東京都新宿区西新宿1丁目7-1

地上9階 / 地下4階

35.53坪

JR山手線 新宿駅 2分

掲載物件数:2,434件  4,403区画

お気に入りに追加