
賃貸条件
| 所在階 | 11階 |
|---|---|
| 用途 | 事務所 |
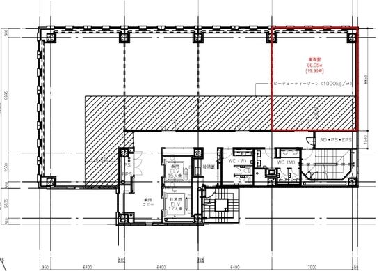
| 面積 | 19.99坪 / 66.08m² |
| 賃料 | 相談 |
| 共益費 | 79,960円 |
| 坪単価 | - |
| 預託金 | 12ヶ月 |
| 入居時期 | 2026年1月上旬 |
| 床仕様 | OAフロア |
物件概要
| 所在地 | 東京都港区虎ノ門1丁目2-20 |
|---|---|
| 交通 |
|
| 規模 | 地上12階 / 地下1階 |
| 竣工 | 2013年2月 |
| 耐震基準 | 新耐震基準 |
| 構造 | 鉄骨鉄筋コンクリート(SRC造) |
| 基準階坪数 | 85.02坪 |
| 基準階天井高 | 2,700mm |
| 延床面積 | 5,172.09㎡ |
物件詳細・設備
| エレベーター | 2基 |
|---|---|
| 駐車場 | あり 機械式 14台 |
| 情報通信設備 | 光ファイバー |
| 空調 | 個別空調 |
| セキュリティ | 機械警備 |
※表⽰⾦額は、敷⾦・保証⾦などの預かり⾦を除き、別途消費税がかかります。 / ※間取図は現況を優先させていただきます。 / ※駐車場は建物設備としての有無のため、有の場合でも賃貸条件としての空きを保証するものではありません。 / ※掲載情報の誤りや変更、未掲載情報の掲載依頼がございましたら、お手数ですが お問い合わせフォームよりご連絡ください。
近隣の条件が近い物件
掲載物件数:2,447件
4,449区画























建物詳細
第3虎の門電気ビルディング(港区虎ノ門1丁目2-20)は、虎ノ門駅徒歩2分の賃貸オフィスビルです。
建物の規模は地上12階・地下1階建て、竣工は2013年2月(新耐震基準)です。エレベーターは2基あります。
基準階のフロア面積は85.02坪、天井高は2700mmです。機械警備・個別空調・OAフロア・男女別トイレなどの設備仕様となっております。
最新の空室状況や賃料・賃貸条件など、お気軽にお問合せ下さい。