
賃貸条件
| 所在階 | 5階 |
|---|---|
| 用途 | 事務所、店舗、倉庫 |
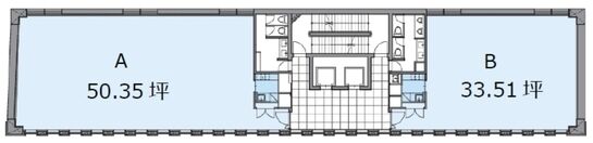
| 面積 | 50.35坪 / 166.44m² |
| 賃料 | 1,409,800円 |
| 共益費 | 賃料に含む |
| 坪単価 | 28,000円/坪(共益費込) |
| 預託金 | 12ヶ月 |
| 入居時期 | 2026年3月上旬 |
| その他費用 | 償却: なし 礼金: なし 更新料・再契約料: なし |
| 天井高 | 2,700mm |
| トイレ | 男女別 |
| 床仕様 | OAフロア・タイルカーペット |
| その他 | 引渡状態 事務所仕様/飲食店舗・給排水工事を伴う店舗は不可・既存との競合業種はご相談(既存店舗:美容室・美容クリニック・ゴルフスクール・メンズエステ) |
物件概要
| 所在地 | 東京都中央区銀座4丁目8-4 |
|---|---|
| 交通 |
|
| 規模 | 地上8階 / 地下1階 |
| 竣工 | 2015年7月 |
| 耐震基準 | 新耐震基準 |
| 構造 | 鉄筋コンクリート(RC造) |
| 基準階坪数 | 83.07坪 |
| 基準階天井高 | 2,700mm |
物件詳細・設備
| エレベーター | 2基 |
|---|---|
| 駐車場 | なし |
| 情報通信設備 | 光ファイバー |
| 空調 | 個別空調 |
| セキュリティ | 機械警備 |
※表⽰⾦額は、敷⾦・保証⾦などの預かり⾦を除き、別途消費税がかかります。 / ※間取図は現況を優先させていただきます。 / ※駐車場は建物設備としての有無のため、有の場合でも賃貸条件としての空きを保証するものではありません。 / ※掲載情報の誤りや変更、未掲載情報の掲載依頼がございましたら、お手数ですが お問い合わせフォームよりご連絡ください。
近隣の条件が近い物件
掲載物件数:2,247件
4,107区画












