
賃貸条件
| 所在階 | 11階 |
|---|---|
| 用途 | 事務所 |
| 面積 | 167.69坪 / 554.34m² |
| 賃料 | 相談 |
| 共益費 | 賃料に含む |
| 坪単価 | - |
| 預託金 | 12ヶ月 |
| 入居時期 | 2026年4月上旬 |
| その他費用 | 償却: なし 更新料・再契約料: なし |
| 天井高 | 3,000mm |
| トイレ | 男女別 |
| 床仕様 | OAフロア |
物件概要
| 所在地 | 東京都中央区銀座5丁目15-8 |
|---|---|
| 交通 |
|
| 規模 | 地上14階 / 地下2階 |
| 竣工 | 2003年7月 |
| 耐震基準 | 新耐震基準 |
| 構造 | 鉄筋コンクリート(RC造) |
| 基準階坪数 | 432.56坪 |
| 基準階天井高 | 3,000mm |
| 延床面積 | 26,037.85㎡ |
物件詳細・設備
| エレベーター | 6基 |
|---|---|
| 駐車場 | あり 地下1階(平面式・機械式)38台 地下2階 (機械式)39台(うち13台がハイルーフ対応) |
| 情報通信設備 | 光ファイバー |
| 空調 | セントラル空調 |
| セキュリティ | 機械警備 |
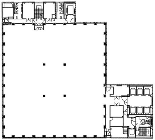
※表⽰⾦額は、敷⾦・保証⾦などの預かり⾦を除き、別途消費税がかかります。 / ※間取図は現況を優先させていただきます。 / ※駐車場は建物設備としての有無のため、有の場合でも賃貸条件としての空きを保証するものではありません。 / ※掲載情報の誤りや変更、未掲載情報の掲載依頼がございましたら、お手数ですが お問い合わせフォームよりご連絡ください。
近隣の条件が近い物件
掲載物件数:2,275件
4,165区画

















建物詳細
時事通信ビル(中央区銀座5丁目15-8)は、「東銀座」駅徒歩2分のオフィスビルです。
建物の規模は地上14階・地下2階建て、銀座東急ホテルの跡地に建つ時事通信社の本社ビルとして2003年7月に竣工したビルです。
執務フロアは整形かつ開放的でフレキシビリティの高いオフィス空間。窓は自然換気システムを併設しており、窓を開け外気を取り込むこともできます。
エレベーターや水まわり等のコア部分は貸室外にあり、2ヶ所に分散しています。
建物は2006年度日本建築学会作品選奨などの賞を受賞。また、2階には様々な用途に対応できる高い機能を備えた時事通信ホールがあります。
最新の空室状況や賃貸条件などにつきましては、お気軽にお問い合わせ下さい。