
賃貸条件
| 所在階 | 2階 |
|---|---|
| 用途 | 事務所 |
| 面積 | 56.71坪 / 187.47m² |
| 賃料 | 相談 |
| 共益費 | 賃料に含む |
| 坪単価 | - |
| 預託金 | 相談 |
| 入居時期 | 2026年3月上旬 |
| トイレ | 男女別 |
物件概要
| 所在地 | 東京都千代田区神田小川町1丁目3-1 |
|---|---|
| 交通 |
|
| 規模 | 地上10階 / 地下1階 |
| 竣工 | 1986年11月 |
| 耐震基準 | 新耐震基準 |
| 構造 | 鉄骨鉄筋コンクリート(SRC造) |
| 基準階坪数 | 178.42坪 |
| 基準階天井高 | 2,500mm |
| 延床面積 | 8,350.32㎡ |
物件詳細・設備
| エレベーター | 3基 |
|---|---|
| 駐車場 | あり |
| 情報通信設備 | 光ファイバー |
| 空調 | 個別空調 |
| セキュリティ | 機械警備・有人管理 |
NBF小川町ビルディングの空室一覧
↓ 募集区画クリックで詳細情報をご覧いただけます
| 募集区画 | 面積 | 用途 | 賃料+共益費 | 坪単価(共益費込) | 入居時期 | 平面図 | お気に入り |
|---|---|---|---|---|---|---|---|
| 2階201 | 56.71坪 | 事務所 | 相談 | - | 2026年3月上旬 |
※表⽰⾦額は、敷⾦・保証⾦などの預かり⾦を除き、別途消費税がかかります。 / ※間取図は現況を優先させていただきます。 / ※駐車場は建物設備としての有無のため、有の場合でも賃貸条件としての空きを保証するものではありません。 / ※掲載情報の誤りや変更、未掲載情報の掲載依頼がございましたら、お手数ですが お問い合わせフォームよりご連絡ください。
近隣の条件が近い物件
掲載物件数:2,376件
4,343区画























建物詳細
NBF小川町ビルディング(東京都千代田区神田小川町1丁目3-1)は、最寄り駅「小川町」駅から徒歩約2分の地上10階・地下1階建ての賃貸オフィスビルです。竣工は1986年11月、エレベーターは3基あります。
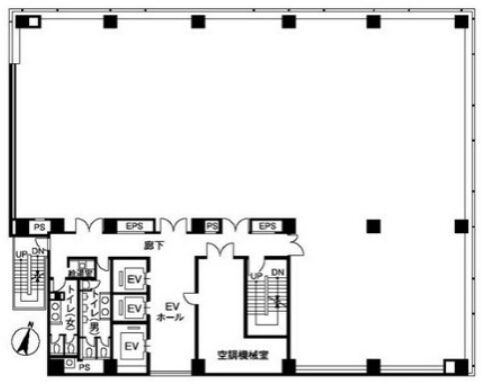
基準階貸室面積は約178.42坪、基準階天井高は2500mm、L字型のような貸室形状で、中央部はほぼ柱のないレイアウト効率の高い空間です。エレベーターやお手洗い等の共用部は執務室の外に配置されております。個別空調・OAフロア・男女別トイレ等の設備仕様、機械警備と有人管理の体制となっております。
最新の空室状況・賃貸条件などお気軽にお問合せ下さい。