
賃貸条件
| 所在階 | 5階 |
|---|---|
| 用途 | 事務所 |
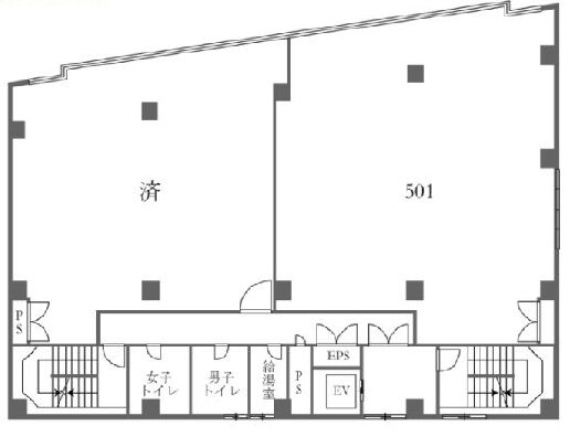
| 面積 | 49.09坪 / 162.28m² |
| 賃料 | 相談 |
| 共益費 | 賃料に含む |
| 坪単価 | - |
| 預託金 | 6ヶ月 |
| 入居時期 | 2026年3月上旬 |
| その他費用 | 償却: 1ヶ月 礼金: なし 更新料・再契約料: なし |
| トイレ | 男女別 |
| 床仕様 | タイルカーペット |
物件概要
| 所在地 | 東京都大田区蒲田5丁目28-4 |
|---|---|
| 交通 |
|
| 規模 | 地上8階建て |
| 竣工 | 1987年2月 |
| 耐震基準 | 新耐震基準 |
| 構造 | 鉄骨鉄筋コンクリート(SRC造) |
| 基準階坪数 | 94.99坪 |
| 基準階天井高 | 2,450mm |
物件詳細・設備
| エレベーター | 1基 |
|---|---|
| 駐車場 | なし |
| 情報通信設備 | 光ファイバー |
| 空調 | 個別空調 |
| セキュリティ | 機械警備 |
ECS第27ビルの空室一覧
↓ 募集区画クリックで詳細情報をご覧いただけます
| 募集区画 | 面積 | 用途 | 賃料+共益費 | 坪単価(共益費込) | 入居時期 | 平面図 | お気に入り |
|---|---|---|---|---|---|---|---|
| NEW5階501 | 49.09坪 | 事務所 | 相談 | - | 2026年3月上旬 |
※表⽰⾦額は、敷⾦・保証⾦などの預かり⾦を除き、別途消費税がかかります。 / ※間取図は現況を優先させていただきます。 / ※駐車場は建物設備としての有無のため、有の場合でも賃貸条件としての空きを保証するものではありません。 / ※掲載情報の誤りや変更、未掲載情報の掲載依頼がございましたら、お手数ですが お問い合わせフォームよりご連絡ください。
近隣の条件が近い物件
掲載物件数:2,462件
4,468区画

























建物詳細
ECS第27ビル(大田区蒲田5丁目28-4)は、JR京浜東北線 蒲田駅徒歩6分の賃貸オフィスビルです。
ビルの竣工は1987年2月(新耐震基準)、建物規模は地上8階建てです。エレベーターは1基あります。
貸室基準階のフロア面積は94.99坪、設備面では、機械警備・個別空調・男女別トイレなどが備わっています。
最新の空室状況や賃料・賃貸条件など、お気軽にお問合せ下さい。