
賃貸条件
| 所在階 | 4階 |
|---|---|
| 用途 | 事務所 |
| 面積 | 33.89坪 / 112.03m² |
| 賃料 | 相談 |
| 共益費 | 賃料に含む |
| 坪単価 | - |
| 預託金 | 8ヶ月 |
| 入居時期 | 相談 |
| その他費用 | 償却: 1ヶ月 更新料・再契約料: 1ヶ月 |
| 天井高 | 2,700mm |
| トイレ | 男女別 |
| 床仕様 | OAフロア |
物件概要
| 所在地 | 東京都千代田区麹町2丁目2-22 |
|---|---|
| 交通 |
|
| 規模 | 地上13階建て |
| 竣工 | 2006年11月 |
| 耐震基準 | 新耐震基準 |
| 構造 | 鉄骨(S造) |
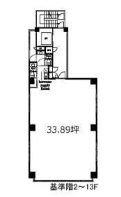
| 基準階坪数 | 33.89坪 |
| 基準階天井高 | 2,700mm |
物件詳細・設備
| エレベーター | 1基 |
|---|---|
| 駐車場 | なし |
| 情報通信設備 | 光ファイバー |
| 空調 | 個別空調 |
| セキュリティ | 機械警備 |
ACN半蔵門ビル(旧:半蔵門デュープレックスビズ)の空室一覧
↓ 募集区画クリックで詳細情報をご覧いただけます
| 募集区画 | 面積 | 用途 | 賃料+共益費 | 坪単価(共益費込) | 入居時期 | 平面図 | お気に入り |
|---|---|---|---|---|---|---|---|
| NEW4階 | 33.89坪 | 事務所 | 相談 | - | 相談 |
※表⽰⾦額は、敷⾦・保証⾦などの預かり⾦を除き、別途消費税がかかります。 / ※間取図は現況を優先させていただきます。 / ※駐車場は建物設備としての有無のため、有の場合でも賃貸条件としての空きを保証するものではありません。 / ※掲載情報の誤りや変更、未掲載情報の掲載依頼がございましたら、お手数ですが お問い合わせフォームよりご連絡ください。
近隣の条件が近い物件
掲載物件数:2,416件
4,382区画































建物詳細
ACN半蔵門ビル(千代田区麹町)は、半蔵門駅徒歩1分の賃貸オフィスビルです。
建物は地上13階建て、竣工は2006年11月(新耐震基準)です。エレベーターは1基あります。
基準階フロア面積は33.89坪、天井高は2700mmです。ワンフロアワンテナントで使いやすく、OAフロア・機械警備・男女別トイレなど基本設備もしっかり付いています。
最新の空室状況や賃料・賃貸条件など、お気軽にお問合せ下さい。