
賃貸条件
| 所在階 | 9階 |
|---|---|
| 用途 | 事務所 |
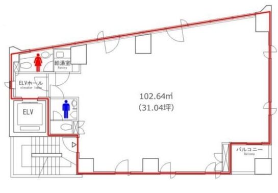
| 面積 | 31.04坪 / 102.61m² |
| 賃料 | 相談 |
| 共益費 | 賃料に含む |
| 坪単価 | - |
| 預託金 | 相談 |
| 入居時期 | 2026年1月上旬 |
| その他費用 | 償却: 1ヶ月 礼金: なし 更新料・再契約料: なし |
| 天井高 | 2,500mm |
| トイレ | 男女別 |
| 床仕様 | OAフロア |
物件概要
| 所在地 | 東京都港区赤坂3丁目2-2 |
|---|---|
| 交通 |
|
| 規模 | 地上9階 / 地下1階 |
| 竣工 | 1999年11月 |
| 耐震基準 | 新耐震基準 |
| 構造 | 鉄骨鉄筋コンクリート(SRC造) |
| 基準階坪数 | 31.05坪 |
| 基準階天井高 | 2,500mm |
| 延床面積 | 1,014.96㎡ |
物件詳細・設備
| エレベーター | 1基 |
|---|---|
| 駐車場 | なし |
| 情報通信設備 | 光ファイバー(MDFまで引込済) |
| 空調 | 個別空調 |
| セキュリティ | 機械警備・有人管理 |
| リニューアル履歴 | 2011年 外観・エントランスリニューアル済 |
※表⽰⾦額は、敷⾦・保証⾦などの預かり⾦を除き、別途消費税がかかります。 / ※間取図は現況を優先させていただきます。 / ※駐車場は建物設備としての有無のため、有の場合でも賃貸条件としての空きを保証するものではありません。 / ※掲載情報の誤りや変更、未掲載情報の掲載依頼がございましたら、お手数ですが お問い合わせフォームよりご連絡ください。
近隣の条件が近い物件
掲載物件数:2,407件
4,368区画















建物詳細
日総第24ビル(港区赤坂3丁目2-2)は、最寄り「赤坂見附」駅より徒歩1分の立地の賃貸オフィスビルです。規模は地上10階建て、竣工は1999年11月です。2011年外観・エントランスリニューアル済みとなっております。最新の募集状況・賃貸条件など、お気軽にお問合せ下さい。