Harmonyビル 7階

最終情報更新日:2026/01/08
ビルコード:1310402159
※竣工イメージ※竣工イメージ
※竣工イメージ
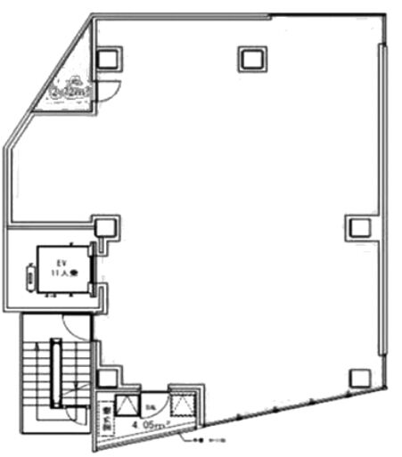
Harmonyビル 7階 平面図

賃貸条件

所在階7階
用途事務所、店舗
面積30.26坪 / 100.03m²
賃料574,940円
共益費賃料に含む
坪単価19,000円/坪(共益費込)
預託金6ヶ月
入居時期2026年3月上旬
その他費用償却: なし
更新料・再契約料: 1ヶ月

物件概要

所在地東京都新宿区高田馬場3丁目12
交通
  • JR山手線 高田馬場駅 5分
規模地上10階建て
竣工2026年2月
耐震基準新耐震基準
構造鉄骨(S造)

物件詳細・設備

エレベーター1基

Harmonyビルの空室一覧

↓ 募集区画クリックで詳細情報をご覧いただけます

募集区画面積用途賃料+共益費坪単価(共益費込)入居時期平面図お気に入り
7階30.26坪事務所、店舗574,940円19,000円/坪2026年3月上旬
6階30.26坪事務所、店舗574,940円19,000円/坪2026年3月上旬
5階28.06坪事務所、店舗617,320円22,000円/坪2026年3月上旬
4階24.43坪事務所、店舗537,460円22,000円/坪2026年3月上旬
3階24.43坪事務所、店舗537,460円22,000円/坪2026年3月上旬

※表⽰⾦額は、敷⾦・保証⾦などの預かり⾦を除き、別途消費税がかかります。 / ※間取図は現況を優先させていただきます。 / ※駐車場は建物設備としての有無のため、有の場合でも賃貸条件としての空きを保証するものではありません。 / ※掲載情報の誤りや変更、未掲載情報の掲載依頼がございましたら、お手数ですが お問い合わせフォームよりご連絡ください。

近隣の条件が近い物件

東京都新宿区高田馬場1丁目30-15

地上9階建て

35.08坪

JR山手線 高田馬場駅 4分

東京都新宿区高田馬場2丁目1-2

地上12階建て

36.83坪

東京メトロ副都心線 西早稲田駅 4分

東京都新宿区西新宿7丁目22-41

地上10階 / 地下2階

28.9坪

都営大江戸線 新宿西口駅 5分

東京都新宿区西新宿8丁目14-24

地上8階 / 地下1階

29.62坪

東京メトロ丸ノ内線 西新宿駅 3分

東京都豊島区東池袋3丁目1-1

地上60階 / 地下4階

29.72坪 〜 30.22坪

東京メトロ有楽町線 東池袋駅 3分

東京都新宿区西新宿7丁目20-11

地上6階 / 地下1階

32.04坪

東京メトロ丸ノ内線 西新宿駅 2分

東京都豊島区南池袋2丁目12-5

地上9階建て

34.0坪

JR山手線 池袋駅 5分

東京都新宿区西新宿2丁目1-1

地上55階 / 地下3階

31.15坪

都営大江戸線 都庁前駅 1分

東京都新宿区西新宿8丁目5-1

地上8階 / 地下1階

32.32坪

東京メトロ丸ノ内線 西新宿駅 1分

東京都新宿区新宿5丁目17-11

地上11階 / 地下2階

28.54坪

東京メトロ副都心線 新宿三丁目駅 1分

東京都新宿区高田馬場2丁目8-2

地上12階 / 地下1階

25.76坪

JR山手線 高田馬場駅 5分

東京都新宿区西新宿6丁目14-1

地上29階 / 地下4階

28.99坪

都営大江戸線 都庁前駅 3分

東京都新宿区西新宿7丁目18-5

地上5階 / 地下1階

26.39坪

JR埼京線 新宿駅 8分

東京都豊島区西池袋2丁目29-19

地上11階 / 地下1階

35.68坪

JR山手線 池袋駅 3分

東京都豊島区南池袋2丁目8-5

地上7階 / 地下1階

35.19坪

東京メトロ有楽町線 東池袋駅 5分

東京都新宿区西新宿1丁目19-7

地上10階建て

31.21坪

京王線 新宿駅 1分

掲載物件数:2,390件  4,343区画

お気に入りに追加