虎ノ門吉荒ビル 4階

最終情報更新日:2025/10/14
ビルコード:1310300940
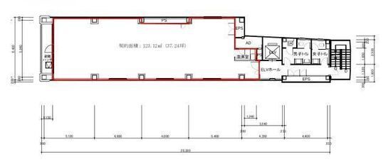
虎ノ門吉荒ビル 4階 平面図
建物詳細

虎ノ門吉荒ビル(港区西新橋1丁目6-13)は、虎ノ門駅徒歩2分の賃貸オフィスビルです。

建物は地上9階・地下1階建て、竣工は1987年8月(新耐震基準)、エレベーターは1基設置されています。

最新の空室状況や賃料・賃貸条件など、お気軽にお問合せ下さい。

賃貸条件

所在階4階内装付
用途事務所
面積37.24坪 / 123.1m²
賃料相談
共益費賃料に含む
坪単価-
預託金6ヶ月
入居時期2025年12月上旬
トイレ男女別

物件概要

所在地東京都港区西新橋1丁目6-13
交通
  • 東京メトロ銀座線 虎ノ門駅 2分
  • 都営三田線 内幸町駅 2分
  • 東京メトロ丸ノ内線 霞ケ関駅 6分
規模地上9階 / 地下1階
竣工1987年8月
耐震基準新耐震基準
構造鉄骨(S造)
基準階坪数37.24坪
基準階天井高2,400mm
延床面積1,659.45㎡

物件詳細・設備

エレベーター1基
駐車場なし
情報通信設備光ファイバー
空調個別空調
セキュリティ機械警備

虎ノ門吉荒ビルの空室一覧

↓ 募集区画クリックで詳細情報をご覧いただけます

募集区画面積用途賃料+共益費坪単価(共益費込)入居時期平面図お気に入り
4階内装付37.24坪事務所相談-2025年12月上旬

※表⽰⾦額は、敷⾦・保証⾦などの預かり⾦を除き、別途消費税がかかります。 / ※間取図は現況を優先させていただきます。 / ※駐車場は建物設備としての有無のため、有の場合でも賃貸条件としての空きを保証するものではありません。 / ※掲載情報の誤りや変更、未掲載情報の掲載依頼がございましたら、お手数ですが お問い合わせフォームよりご連絡ください。

近隣の条件が近い物件

東京都港区西新橋1丁目12-8

地上8階 / 地下1階

36.78坪

都営三田線 内幸町駅 3分

東京都港区西新橋1丁目4-14

地上7階 / 地下1階

36.03坪

都営三田線 内幸町駅 1分

東京都港区新橋2丁目3-7

地上7階 / 地下2階

38.8坪

都営三田線 内幸町駅 4分

東京都港区西新橋2丁目23-1

地上9階 / 地下1階

38.0坪

都営三田線 内幸町駅 6分

東京都港区西新橋3丁目10-3

地上7階建て

36.63坪

都営三田線 御成門駅 5分

東京都港区西新橋2丁目2-2

地上8階 / 地下1階

40.28坪

東京メトロ銀座線 虎ノ門駅 5分

東京都千代田区内幸町2丁目2-2

地上29階 / 地下5階

40.55坪

都営三田線 内幸町駅 1分

東京都港区新橋5丁目23-7

地上14階 / 地下1階

38.19坪

都営三田線 御成門駅 4分

東京都港区虎ノ門3丁目10-5

地上6階建て

36.69坪

東京メトロ日比谷線 神谷町駅 4分

東京都港区西新橋1丁目17-8

地上7階 / 地下1階

33.74坪

都営三田線 内幸町駅 3分

東京都港区虎ノ門1丁目1-23

地上9階 / 地下1階

33.55坪

東京メトロ銀座線 虎ノ門駅 1分

東京都港区新橋5丁目8-3

地上9階 / 地下1階

38.61坪

JR山手線 新橋駅 5分

東京都港区新橋1丁目14-8

地上14階建て

40.08坪 〜 40.08坪

東京メトロ銀座線 新橋駅 1分

掲載物件数:2,247件  4,106区画

お気に入りに追加