東宝駒込ビル 7階

最終情報更新日:2025/11/07
ビルコード:1311600352
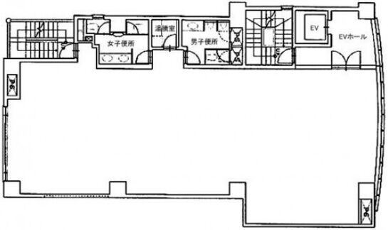
東宝駒込ビル 7階 平面図

賃貸条件

所在階7階
用途事務所
面積51.94坪 / 171.7m²
賃料相談
共益費賃料に含む
坪単価-
預託金12ヶ月
入居時期2026年5月上旬
その他費用償却: なし
更新料・再契約料: なし
トイレ男女別
その他来店型可

物件概要

所在地東京都豊島区駒込3丁目3-17
交通
  • JR山手線 駒込駅 2分
規模地上7階 / 地下1階
竣工1993年3月
耐震基準新耐震基準
構造鉄骨鉄筋コンクリート(SRC造)
基準階坪数57.15坪

物件詳細・設備

エレベーター1基
駐車場なし
情報通信設備光ファイバー
空調個別空調
セキュリティ機械警備・有人管理

東宝駒込ビルの空室一覧

↓ 募集区画クリックで詳細情報をご覧いただけます

募集区画面積用途賃料+共益費坪単価(共益費込)入居時期平面図お気に入り
7階51.94坪事務所相談-2026年5月上旬
3階57.15坪事務所相談-2026年5月上旬

※表⽰⾦額は、敷⾦・保証⾦などの預かり⾦を除き、別途消費税がかかります。 / ※間取図は現況を優先させていただきます。 / ※駐車場は建物設備としての有無のため、有の場合でも賃貸条件としての空きを保証するものではありません。 / ※掲載情報の誤りや変更、未掲載情報の掲載依頼がございましたら、お手数ですが お問い合わせフォームよりご連絡ください。

近隣の条件が近い物件

東京都豊島区巣鴨1丁目24-1

地上6階建て

48.48坪

JR山手線 巣鴨駅 4分

東京都荒川区西日暮里5丁目26-8

地上7階建て

52.25坪

東京メトロ千代田線 西日暮里駅 2分

東京都文京区小石川5丁目36-5

地上7階 / 地下1階

53.4坪

東京メトロ丸ノ内線 茗荷谷駅 6分

東京都豊島区東池袋3丁目22-17

地上7階 / 地下1階

51.84坪

東京メトロ有楽町線 東池袋駅 8分

東京都豊島区東池袋1丁目30-12

地上9階 / 地下1階

53.0坪

JR山手線 池袋駅 5分

東京都豊島区東池袋1丁目19-10

地上6階 / 地下1階

52.64坪

JR山手線 池袋駅 5分

東京都豊島区南大塚2丁目38-1

地上8階 / 地下1階

46.09坪

JR山手線 大塚駅 5分

東京都豊島区東池袋4丁目-25

地上12階建て

53.74坪

東京メトロ有楽町線 東池袋駅 5分

東京都豊島区東池袋1丁目25-9

地上9階建て

50.22坪

東京メトロ有楽町線 東池袋駅 3分

東京都荒川区西日暮里2丁目20-1

地上25階 / 地下2階

55.5坪

JR山手線 西日暮里駅 1分

東京都文京区白山5丁目36-9

地上10階建て

46.41坪

都営三田線 白山駅 1分

東京都豊島区東池袋1丁目21-11

地上12階 / 地下3階

54.32坪

JR山手線 池袋駅 4分

東京都新宿区新小川町6-36

地上14階 / 地下1階

53.05坪

JR中央・総武線 飯田橋駅 8分

東京都豊島区東池袋1丁目41-6

地上10階 / 地下1階

54.12坪

JR山手線 池袋駅 1分

東京都豊島区南池袋2丁目17-7

地上13階建て

50.12坪

JR山手線 池袋駅 5分

東京都豊島区南池袋2丁目35-4

地上8階 / 地下1階

49.12坪

東京メトロ有楽町線 東池袋駅 4分

東京都文京区本郷5丁目33-10

地上6階 / 地下1階

48.87坪

都営大江戸線 春日駅 3分

東京都文京区本駒込2丁目28-8

地上23階 / 地下3階

36.95坪

都営三田線 千石駅 3分

掲載物件数:2,264件  4,147区画

お気に入りに追加