
賃貸条件
| 所在階 | 5階 |
|---|---|
| 用途 | 事務所 |
| 面積 | 149.55坪 / 494.38m² |
| 賃料 | 相談 |
| 共益費 | 賃料に含む |
| 坪単価 | - |
| 預託金 | 12ヶ月 |
| 入居時期 | 2026年4月下旬 |
| その他費用 | 償却: なし 礼金: なし 更新料・再契約料: なし |
| 天井高 | 2,600mm |
| トイレ | 男女別 |
| 床仕様 | OAフロア |
物件概要
| 所在地 | 東京都港区芝公園1丁目8-12 |
|---|---|
| 交通 |
|
| 規模 | 地上9階 / 地下1階 |
| 竣工 | 1991年3月 |
| 耐震基準 | 新耐震基準 |
| 構造 | 鉄骨鉄筋コンクリート(SRC造) |
| 基準階坪数 | 174.66坪 |
| 基準階天井高 | 2,600mm |
| 延床面積 | 5,593.43㎡ |
物件詳細・設備
| エレベーター | 2基 |
|---|---|
| 駐車場 | あり 機械式 32台 |
| 情報通信設備 | 光ファイバー |
| 空調 | 個別空調 |
| セキュリティ | 機械警備 |
芝公園大門通プラザビル(旧:ヒューリック芝公園大門通ビル)の空室一覧
↓ 募集区画クリックで詳細情報をご覧いただけます
| 募集区画 | 面積 | 用途 | 賃料+共益費 | 坪単価(共益費込) | 入居時期 | 平面図 | お気に入り |
|---|---|---|---|---|---|---|---|
| NEW5階 | 149.55坪 | 事務所 | 相談 | - | 2026年4月下旬 |
※表⽰⾦額は、敷⾦・保証⾦などの預かり⾦を除き、別途消費税がかかります。 / ※間取図は現況を優先させていただきます。 / ※駐車場は建物設備としての有無のため、有の場合でも賃貸条件としての空きを保証するものではありません。 / ※掲載情報の誤りや変更、未掲載情報の掲載依頼がございましたら、お手数ですが お問い合わせフォームよりご連絡ください。
近隣の条件が近い物件
掲載物件数:2,355件
4,305区画





















建物詳細
芝公園大門通プラザビル(旧:ヒューリック芝公園大門通ビル、NBF芝公園大門通ビル、東京都港区芝公園1丁目8-12)は、最寄り駅「大門」駅から徒歩約3分の地上9階・地下1階建ての賃貸オフィスビルです。竣工は1991年3月、エレベーターは2基あります。
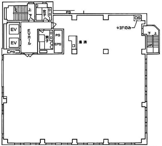
基準階貸室面積は約174.66坪、基準階天井高は2600mmです。エレベーターやお手洗い等の共用部は執務室の外に配置されております。機械警備・個別空調・OAフロア・男女別トイレ等の設備仕様となっています。
最新の空室状況・賃貸条件などお気軽にお問合せ下さい。