03-6264-1890
受付時間 9:00 - 18:30 定休日 土日祝
受付時間 9:00 - 18:30 定休日 土日祝
芝公園大門通プラザビル(旧:ヒューリック芝公園大門通ビル) 5階
物件情報
| 所在地 | 東京都港区芝公園1丁目8-12 |
|---|---|
| 最寄駅 | 都営大江戸線 大門駅 3分 都営三田線 御成門駅 5分 都営三田線 芝公園駅 6分 JR山手線 浜松町駅 7分 都営大江戸線 赤羽橋駅 10分 |
| 竣工 | 1991年3月 |
| 階数 | 地上9階 / 地下1階 |
| エレベーター | 2基 |
賃貸条件
| 募集区画 | 5階 |
|---|---|
| 賃料(共益費) | 相談(賃料に含む) |
| 敷金/礼金 | 12ヶ月/なし |
| 保証金 /敷引/償却 | -/-/なし |
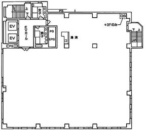
| 面積 | 149.55坪 |
| 入居条件 | 2026年4月下旬 |