大住ビルの空室一覧
現在、テナント募集区画の掲載はありません。
非公開の空室情報や、類似物件をご希望の方は「空室お知らせ希望」からお気軽にお問合せください。
非公開の空室情報や、類似物件をご希望の方は「空室お知らせ希望」からお気軽にお問合せください。
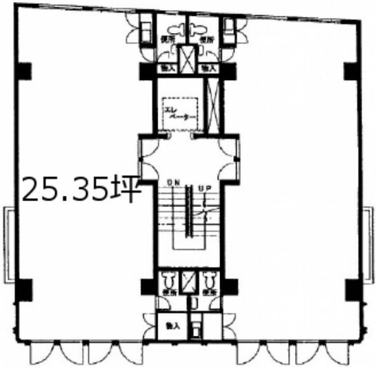
※表⽰⾦額は、敷⾦・保証⾦などの預かり⾦を除き、別途消費税がかかります。 / ※間取図は現況を優先させていただきます。 / ※駐車場は建物設備としての有無のため、有の場合でも賃貸条件としての空きを保証するものではありません。 / ※掲載情報の誤りや変更、未掲載情報の掲載依頼がございましたら、お手数ですが お問い合わせフォームよりご連絡ください。
近隣の条件が近い物件
掲載物件数:2,374件
4,326区画

























建物詳細
大住ビル(豊島区東池袋)は、東池袋駅徒歩6分の賃貸オフィスビルです。
建物は地上11階建て、竣工は1974年11月です。
エレベーターは1基あります。基準階坪数は62坪です。
最新の空室状況・賃貸条件等はお気軽にお問合せ下さい。