
賃貸条件
| 所在階 | 10階 |
|---|---|
| 用途 | 事務所 |
| 面積 | 55.74坪 / 184.26m² |
| 賃料 | 相談 |
| 共益費 | 相談 |
| 坪単価 | - |
| 預託金 | 相談 |
| 入居時期 | 2026年3月上旬 |
| その他費用 | 償却: 2ヶ月 更新料・再契約料: 1ヶ月 |
| トイレ | 男女別 |
| 床仕様 | OAフロア |
物件概要
| 所在地 | 東京都品川区東五反田1丁目10-10 |
|---|---|
| 交通 |
|
| 規模 | 地上10階 / 地下1階 |
| 竣工 | 1989年9月 |
| 耐震基準 | 新耐震基準 |
| 構造 | 鉄骨(S造) |
| 基準階坪数 | 58.61坪 |
物件詳細・設備
| エレベーター | 1基 |
|---|---|
| 駐車場 | なし |
| 情報通信設備 | 光ファイバー |
| 空調 | 個別空調 |
| セキュリティ | 機械警備 |
| リニューアル履歴 | 2024年7月 エントランスホール・各階共用部 リニューアル |
※表⽰⾦額は、敷⾦・保証⾦などの預かり⾦を除き、別途消費税がかかります。 / ※間取図は現況を優先させていただきます。 / ※駐車場は建物設備としての有無のため、有の場合でも賃貸条件としての空きを保証するものではありません。 / ※掲載情報の誤りや変更、未掲載情報の掲載依頼がございましたら、お手数ですが お問い合わせフォームよりご連絡ください。
近隣の条件が近い物件
掲載物件数:2,376件
4,343区画























建物詳細
オフィスT&U(品川区東五反田1丁目10-10)は、最寄り「五反田」駅徒歩4分の立地の賃貸オフィスビルです。
デザイン性にあふれるファサードと豪華なエントランスが特徴のビルで、建物規模は地上10階・地下1階建て、竣工は1989年9月です。
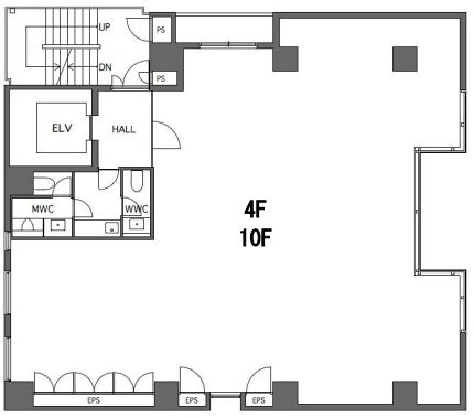
貸室内はOAフロア、正方形に近い形状でレイアウトの自由度も高い空間です。お手洗いも男女別で使いやすいオフィスです。
エレベーター不停止装置がついておりセキュリティ面でもご安心いただけます。
最新の募集状況や賃貸条件など、お気軽にお問合せ下さい。