
賃貸条件
| 所在階 | 2階 |
|---|---|
| 用途 | 事務所、店舗 |
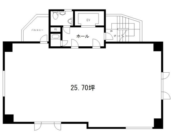
| 面積 | 25.7坪 / 84.95m² |
| 賃料 | 424,050円 |
| 共益費 | 相談 |
| 坪単価 | - |
| 預託金 | 3,265,185円 |
| 入居時期 | 相談 |
| その他費用 | 償却: 1ヶ月 礼金: なし 更新料・再契約料: 1ヶ月 |
| トイレ | 男女共用 |
| その他 | サービス店舗相談可/飲食店舗不可 |
物件概要
| 所在地 | 東京都渋谷区東3丁目16-1 |
|---|---|
| 交通 |
|
| 規模 | 地上8階建て |
| 竣工 | 1980年1月 |
| 構造 | 鉄筋コンクリート(RC造) |
物件詳細・設備
| エレベーター | 1基 |
|---|---|
| 空調 | 個別空調 |
※表⽰⾦額は、敷⾦・保証⾦などの預かり⾦を除き、別途消費税がかかります。 / ※間取図は現況を優先させていただきます。 / ※駐車場は建物設備としての有無のため、有の場合でも賃貸条件としての空きを保証するものではありません。 / ※掲載情報の誤りや変更、未掲載情報の掲載依頼がございましたら、お手数ですが お問い合わせフォームよりご連絡ください。
近隣の条件が近い物件
掲載物件数:2,434件
4,403区画






















