03-6264-1890
受付時間 9:00 - 18:30 定休日 土日祝
受付時間 9:00 - 18:30 定休日 土日祝
ベルザ恵比寿 2階

物件情報
| 所在地 | 東京都渋谷区東3丁目16-1 | 
|---|---|
| 最寄駅 | JR山手線 恵比寿駅 4分 | 
| 竣工 | 1980年1月 | 
| 階数 | 地上8階建て | 
| エレベーター | 1基 | 
賃貸条件
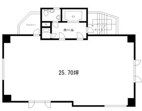
| 募集区画 | 2階 | 
|---|---|
| 賃料(共益費) | 424,050円(相談) | 
| 敷金/礼金 | 3,265,185円/なし | 
| 保証金 /敷引/償却 | -/-/1ヶ月 | 
| 面積 | 25.7坪 | 
| 入居条件 | 2026年4月上旬 | 

| 所在地 | 東京都渋谷区東3丁目16-1 | 
|---|---|
| 最寄駅 | JR山手線 恵比寿駅 4分 | 
| 竣工 | 1980年1月 | 
| 階数 | 地上8階建て | 
| エレベーター | 1基 | 
| 募集区画 | 2階 | 
|---|---|
| 賃料(共益費) | 424,050円(相談) | 
| 敷金/礼金 | 3,265,185円/なし | 
| 保証金 /敷引/償却 | -/-/1ヶ月 | 
| 面積 | 25.7坪 | 
| 入居条件 | 2026年4月上旬 |