
賃貸条件
| 所在階 | 7階 |
|---|---|
| 用途 | 事務所 |
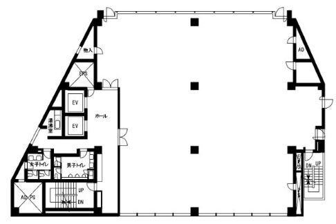
| 面積 | 119.74坪 / 395.83m² |
| 賃料 | 1,676,360円 |
| 共益費 | 478,960円 |
| 坪単価 | 18,000円/坪(共益費込) |
| 預託金 | 12ヶ月 |
| 入居時期 | 2026年4月上旬 |
| トイレ | 男女別 |
| 床仕様 | OAフロア |
物件概要
| 所在地 | 東京都目黒区青葉台3丁目1-19 |
|---|---|
| 交通 |
|
| 規模 | 地上9階建て |
| 竣工 | 1987年3月 |
| 耐震基準 | 新耐震基準 |
| 構造 | 鉄骨鉄筋コンクリート(SRC造) |
物件詳細・設備
| エレベーター | 2基 |
|---|---|
| 駐車場 | あり 機械式立体駐車場・平面式 |
| 情報通信設備 | 光ファイバー |
| 空調 | 個別空調 |
| セキュリティ | 機械警備 |
| 建物設備 | 各階に自動販売機設置 |
※表⽰⾦額は、敷⾦・保証⾦などの預かり⾦を除き、別途消費税がかかります。 / ※間取図は現況を優先させていただきます。 / ※駐車場は建物設備としての有無のため、有の場合でも賃貸条件としての空きを保証するものではありません。 / ※掲載情報の誤りや変更、未掲載情報の掲載依頼がございましたら、お手数ですが お問い合わせフォームよりご連絡ください。
近隣の条件が近い物件
掲載物件数:2,374件
4,320区画


























