03-6264-1890
受付時間 9:00 - 18:30 定休日 土日祝
受付時間 9:00 - 18:30 定休日 土日祝
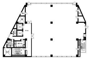
青葉台石橋ビル 7階
物件情報
| 所在地 | 東京都目黒区青葉台3丁目1-19 |
|---|---|
| 最寄駅 | 京王井の頭線 神泉駅 7分 JR山手線 渋谷駅 13分 |
| 竣工 | 1987年3月 |
| 階数 | 地上9階建て |
| エレベーター | 2基 |
賃貸条件
| 募集区画 | 7階 |
|---|---|
| 賃料(共益費) | 1,676,360円(478,960円) |
| 敷金/礼金 | 12ヶ月/- |
| 保証金 /敷引/償却 | なし |
| 面積 | 119.74坪 |
| 入居条件 | 2026年4月上旬 |