エムズクロス人形町 9階

人形町交差点、視認性抜群の店舗・オフィスビル!
最終情報更新日:2025/11/11
ビルコード:1310203910
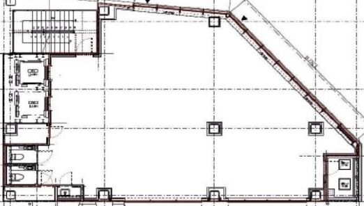
エムズクロス人形町 9階 平面図
担当者からのコメント
クリニック、スポーツジム、美容サロン、スクール等、業種や条件につきましてはお気軽にご相談ください。

賃貸条件

所在階9階
用途事務所、店舗
面積50.9坪 / 168.26m²
賃料相談
共益費相談
坪単価-
預託金相談
入居時期即入居
その他費用償却: 相談
礼金: 相談
更新料・再契約料: 相談
トイレ男女別
床仕様OAフロア・タイルカーペット

物件概要

所在地東京都中央区日本橋人形町1丁目19-5
交通
  • 東京メトロ日比谷線 人形町駅 1分
規模地上10階建て
竣工2023年6月
耐震基準新耐震基準
構造鉄骨(S造)
基準階坪数50.96坪

物件詳細・設備

エレベーター2基
駐車場なし
空調個別空調
セキュリティ機械警備

エムズクロス人形町の空室一覧

↓ 募集区画クリックで詳細情報をご覧いただけます

募集区画面積用途賃料+共益費坪単価(共益費込)入居時期平面図お気に入り
9階50.9坪事務所、店舗相談-即入居

※表⽰⾦額は、敷⾦・保証⾦などの預かり⾦を除き、別途消費税がかかります。 / ※間取図は現況を優先させていただきます。 / ※駐車場は建物設備としての有無のため、有の場合でも賃貸条件としての空きを保証するものではありません。 / ※掲載情報の誤りや変更、未掲載情報の掲載依頼がございましたら、お手数ですが お問い合わせフォームよりご連絡ください。

近隣の条件が近い物件

東京都中央区日本橋小網町15-9

地上6階建て

52.9坪

東京メトロ日比谷線 人形町駅 3分

東京都中央区日本橋浜町2丁目35-2

地上11階建て

49.32坪 〜 53.82坪

都営新宿線 浜町駅 2分

東京都中央区日本橋蛎殻町2丁目10-11

地上7階建て

49.39坪

東京メトロ半蔵門線 水天宮前駅 4分

東京都中央区日本橋本町1丁目4-9

地上10階建て

49.21坪

東京メトロ銀座線 三越前駅 4分

東京都中央区日本橋箱崎町25-7

地上9階 / 地下1階

49.91坪

東京メトロ半蔵門線 水天宮前駅 1分

東京都中央区東日本橋3丁目10-14

地上8階建て

52.08坪

都営浅草線 東日本橋駅 1分

東京都中央区東日本橋3丁目4-18

地上8階建て

53.25坪

総武線(快速) 馬喰町駅 4分

東京都中央区日本橋浜町2丁目36-8

地上6階建て

48.12坪

都営新宿線 浜町駅 1分

東京都千代田区岩本町2丁目8-8

地上9階 / 地下1階

50.93坪 〜 51.84坪

東京メトロ日比谷線 小伝馬町駅 4分

東京都中央区日本橋箱崎町5-4

地上7階建て

52.8坪

東京メトロ半蔵門線 水天宮前駅 7分

東京都中央区日本橋小伝馬町15-18

地上9階 / 地下1階

48.64坪

東京メトロ日比谷線 小伝馬町駅 2分

東京都中央区日本橋茅場町3丁目2-2

地上7階建て

50.0坪

東京メトロ日比谷線 茅場町駅 3分

東京都中央区日本橋小網町3-17

地上7階建て

48.05坪

東京メトロ日比谷線 茅場町駅 5分

東京都中央区日本橋人形町3丁目7-10

地上9階 / 地下1階

44.64坪

東京メトロ日比谷線 人形町駅 1分

掲載物件数:2,314件  4,257区画

お気に入りに追加