大森プラザビル(OHMORI PLAZA BUILDING) 1階

京急・JR2駅利用可。明るく清潔感のある美観オフィスビル!
最終情報更新日:2025/11/10
ビルコード:1310900344
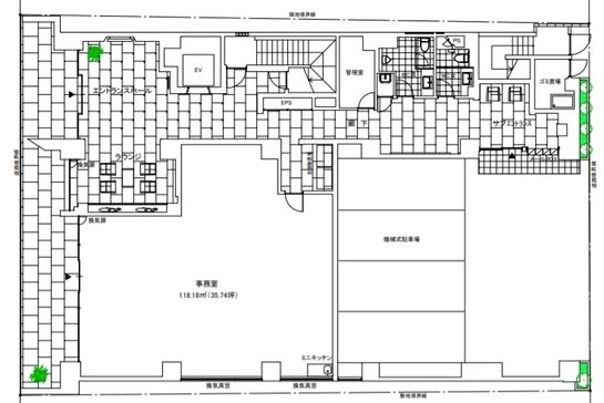
大森プラザビル(OHMORI PLAZA BUILDING) 1階 平面図
建物詳細

大森プラザビル(品川区南大井3丁目28-3)は、京急「大森海岸」駅徒歩3分・JR「大森」駅徒歩4分の立地の賃貸オフィスビルです。

竣工は1989年4月(新耐震基準)、建物の規模は地上6階・地下1階建てです。建物は2007年7月に大規模改修済みです。

明るく清潔感のあり高級感のあるエントランスロビー。裏側にはサブエントランスもございます。

エレベーターは1基、機械式駐車場がございます。また、個別空調・機械警備などの設備が備わっています。

最新の空室状況・賃貸条件など、お気軽にお問合せ下さい。

賃貸条件

所在階1階
用途事務所
面積35.74坪 / 118.14m²
賃料相談
共益費107,220円
坪単価-
預託金10ヶ月
入居時期即入居
その他費用償却: なし
天井高3,250mm
トイレ男女別

物件概要

所在地東京都品川区南大井3丁目28-3
交通
  • 京急本線 大森海岸駅 3分
  • JR京浜東北線 大森駅 4分
規模地上6階 / 地下1階
竣工1989年4月
耐震基準新耐震基準
構造鉄筋コンクリート(RC造)
基準階坪数101.29坪
延床面積2,564.62㎡

物件詳細・設備

エレベーター1基
駐車場あり 機械式立体駐車場
情報通信設備光ファイバー
空調個別空調
セキュリティ機械警備

大森プラザビル(OHMORI PLAZA BUILDING)の空室一覧

↓ 募集区画クリックで詳細情報をご覧いただけます

募集区画面積用途賃料+共益費坪単価(共益費込)入居時期平面図お気に入り
4階B44.32坪事務所相談-即入居
1階35.74坪事務所相談-即入居

※表⽰⾦額は、敷⾦・保証⾦などの預かり⾦を除き、別途消費税がかかります。 / ※間取図は現況を優先させていただきます。 / ※駐車場は建物設備としての有無のため、有の場合でも賃貸条件としての空きを保証するものではありません。 / ※掲載情報の誤りや変更、未掲載情報の掲載依頼がございましたら、お手数ですが お問い合わせフォームよりご連絡ください。

近隣の条件が近い物件

東京都大田区大森北1丁目3-5

地上6階建て

23.0坪 〜 35.0坪

JR京浜東北線 大森駅 3分

東京都大田区山王2丁目1-6

地上10階建て

34.71坪

JR京浜東北線 大森駅 1分

東京都大田区大森北1丁目3-10

地上9階建て

31.66坪 〜 40.13坪

JR京浜東北線 大森駅 2分

東京都大田区大森北1丁目2-1

地上6階 / 地下1階

29.0坪 〜 30.81坪

JR京浜東北線 大森駅 1分

東京都品川区南大井3丁目6-18

地上5階建て

29.72坪

JR京浜東北線 大森駅 10分

東京都品川区南大井6丁目12-13

地上10階 / 地下1階

28.78坪

JR京浜東北線 大森駅 4分

東京都品川区南大井6丁目6-5

地上4階建て

44.6坪

JR京浜東北線 大森駅 7分

東京都大田区大森北6丁目26-23

地上4階建て

30.59坪

京急本線 平和島駅 3分

東京都大田区大森北1丁目4-1

地上8階建て

25.95坪

JR京浜東北線 大森駅 1分

東京都品川区南大井3丁目22-7

地上7階建て

48.93坪

京急本線 大森海岸駅 3分

東京都大田区西蒲田50-10,15,16

地上14階 / 地下1階

35.0坪

JR京浜東北線 蒲田駅 4分

東京都大田区山王3丁目27-6

地上10階建て

46.68坪

JR京浜東北線 大森駅 8分

東京都品川区平塚2丁目6-13

地上10階 / 地下1階

35.7坪

東急池上線 戸越銀座駅 4分

東京都品川区北品川5丁目6-1

地上20階 / 地下5階

36.21坪

JR山手線 大崎駅 5分

東京都大田区平和島6丁目1-1 東京流通センターセンタービル

地上11階 / 地下2階

26.18坪

東京モノレール 流通センター駅 1分

東京都大田区西蒲田7丁目26-11

地上10階建て

38.16坪

JR京浜東北線 蒲田駅 5分

掲載物件数:2,306件  4,222区画

お気に入りに追加