東宣ビル 5階

最終情報更新日:2025/09/11
ビルコード:1310203454
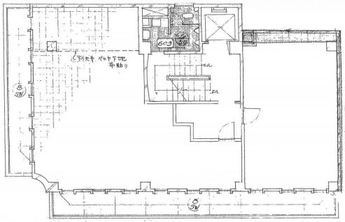
東宣ビル 5階 平面図

賃貸条件

所在階5階
用途事務所
面積25.0坪 / 82.64m²
賃料相談
共益費相談
坪単価-
預託金6ヶ月
入居時期即入居
その他費用償却: 2ヶ月
礼金: なし
更新料・再契約料: 1ヶ月
トイレ男女共用
床仕様OAフロア・タイルカーペット

物件概要

所在地東京都中央区京橋3丁目7-10
交通
  • 都営浅草線 宝町駅 2分
  • 東京メトロ銀座線 京橋駅 3分
  • JR山手線 東京駅 8分
規模地上6階 / 地下1階
竣工1962年5月
構造鉄筋コンクリート(RC造)
基準階坪数32.0坪

物件詳細・設備

エレベーター1基
駐車場なし
情報通信設備光ファイバー
空調個別空調
セキュリティ有人管理

東宣ビルの空室一覧

↓ 募集区画クリックで詳細情報をご覧いただけます

募集区画面積用途賃料+共益費坪単価(共益費込)入居時期平面図お気に入り
5階25.0坪事務所相談-即入居

※表⽰⾦額は、敷⾦・保証⾦などの預かり⾦を除き、別途消費税がかかります。 / ※間取図は現況を優先させていただきます。 / ※駐車場は建物設備としての有無のため、有の場合でも賃貸条件としての空きを保証するものではありません。 / ※掲載情報の誤りや変更、未掲載情報の掲載依頼がございましたら、お手数ですが お問い合わせフォームよりご連絡ください。

近隣の条件が近い物件

東京都中央区京橋2丁目8-10

地上6階建て

23.66坪 〜 25.04坪

JR山手線 東京駅 5分

東京都中央区銀座1丁目6-15

地上5階建て

23.89坪

東京メトロ有楽町線 銀座一丁目駅 1分

東京都中央区八丁堀3丁目9-5

地上8階建て

25.05坪

都営浅草線 宝町駅 2分

東京都中央区銀座2丁目6-5

地上9階建て

25.0坪

東京メトロ有楽町線 銀座一丁目駅 1分

東京都中央区八丁堀2丁目2-4

地上5階建て

24.9坪

JR京葉線 八丁堀駅 4分

東京都中央区京橋2丁目11-7

地上6階 / 地下1階

22.31坪

都営浅草線 宝町駅 1分

東京都中央区八丁堀4丁目4-4

地上8階建て

26.77坪

東京メトロ日比谷線 八丁堀駅 4分

東京都中央区新富町1丁目9-4

地上6階建て

25.54坪

東京メトロ有楽町線 新富町駅 3分

東京都千代田区丸の内1丁目9-2

地上42階 / 地下4階

25.52坪

JR山手線 東京駅 1分

東京都中央区銀座3丁目14-15

地上9階建て

25.9坪

東京メトロ日比谷線 東銀座駅 2分

東京都中央区京橋1丁目5-12

地上10階建て

23.0坪

東京メトロ銀座線 京橋駅 1分

東京都中央区八丁堀1丁目1-3

地上6階 / 地下1階

25.0坪

東京メトロ日比谷線 八丁堀駅 5分

東京都中央区新富2丁目7-4

地上9階建て

23.91坪

東京メトロ有楽町線 新富町駅 1分

東京都中央区八丁堀1丁目4-5

地上8階建て

26.0坪

東京メトロ日比谷線 八丁堀駅 3分

東京都中央区八重洲1丁目9

地上10階 / 地下2階

25.73坪

JR山手線 東京駅 0分

掲載物件数:2,239件  4,141区画

お気に入りに追加