
賃貸条件
| 所在階 | 3階 |
|---|---|
| 用途 | 事務所 |
| 面積 | 40.9坪 / 135.2m² |
| 賃料 | 相談 |
| 共益費 | 相談 |
| 坪単価 | - |
| 預託金 | 相談 |
| 入居時期 | 2026年4月上旬 |
| 天井高 | 2,500mm |
| トイレ | 男女別 |
物件概要
| 所在地 | 東京都港区虎ノ門3丁目8-27 |
|---|---|
| 交通 |
|
| 規模 | 地上9階 / 地下2階 |
| 竣工 | 1988年3月 |
| 耐震基準 | 新耐震基準 |
| 構造 | 鉄骨鉄筋コンクリート(SRC造) |
| 基準階坪数 | 40.9坪 |
| 基準階天井高 | 2,500mm |
| 延床面積 | 2,443.86㎡ |
物件詳細・設備
| エレベーター | 1基 |
|---|---|
| 駐車場 | なし |
| 情報通信設備 | 光ファイバー |
| 空調 | 個別空調 |
| セキュリティ | 機械警備 |
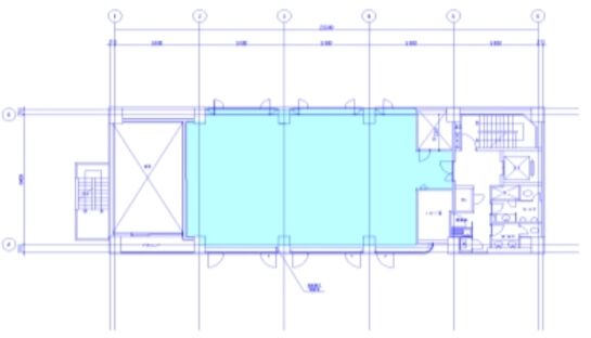
※表⽰⾦額は、敷⾦・保証⾦などの預かり⾦を除き、別途消費税がかかります。 / ※間取図は現況を優先させていただきます。 / ※駐車場は建物設備としての有無のため、有の場合でも賃貸条件としての空きを保証するものではありません。 / ※掲載情報の誤りや変更、未掲載情報の掲載依頼がございましたら、お手数ですが お問い合わせフォームよりご連絡ください。
近隣の条件が近い物件
掲載物件数:2,442件
4,444区画



















建物詳細
巴町アネックス2号館(港区虎ノ門3丁目)は、虎ノ門ヒルズ駅徒歩1分の賃貸オフィスビルです。
建物の規模は地上9階・地下2階建て、竣工は1988年3月(新耐震基準)です。エレベーターは1基あります。
基準階のフロア面積は40.9坪、天井高は2500mmです。
最新の空室状況や賃料・賃貸条件など、お気軽にお問合せ下さい。