NEW

ダイバーシティ東京 オフィスタワー 11階東

ダイバーシティ東京プラザと直結!大型フロアを有する複合ビル。
最終情報更新日:2025/10/23
ビルコード:1310800144
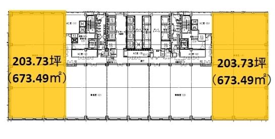
ダイバーシティ東京 オフィスタワー 11階東 平面図

賃貸条件

所在階11階
用途事務所
面積203.73坪 / 673.49m²
賃料相談
共益費相談
坪単価-
預託金相談
入居時期相談
天井高2,750mm
トイレ男女別

物件概要

所在地東京都江東区青海1丁目1-20
交通
  • りんかい線 東京テレポート駅 6分
  • ゆりかもめ 台場駅 5分
  • ゆりかもめ 青海駅 6分
  • ゆりかもめ 東京国際クルーズターミナル駅 8分
規模地上22階 / 地下1階
竣工2012年4月
耐震基準新耐震基準
構造鉄骨(S造)
基準階坪数690.0坪
基準階天井高2,750mm
延床面積64,255.3㎡

物件詳細・設備

エレベーター16基
駐車場あり 35台
情報通信設備光ファイバー
空調セントラル空調
セキュリティ機械警備・有人管理

ダイバーシティ東京 オフィスタワーの空室一覧

↓ 募集区画クリックで詳細情報をご覧いただけます

募集区画面積用途賃料+共益費坪単価(共益費込)入居時期平面図お気に入り
12階居抜き81.6坪事務所相談-相談
NEW11階東203.73坪事務所相談-相談
NEW11階西203.73坪事務所相談-相談
10階690.77坪事務所相談-相談
9階690.77坪事務所相談-相談
8階690.77坪事務所相談-相談
7階324.99坪事務所相談-即入居
7階居抜き162.05坪事務所相談-相談

※表⽰⾦額は、敷⾦・保証⾦などの預かり⾦を除き、別途消費税がかかります。 / ※間取図は現況を優先させていただきます。 / ※駐車場は建物設備としての有無のため、有の場合でも賃貸条件としての空きを保証するものではありません。 / ※掲載情報の誤りや変更、未掲載情報の掲載依頼がございましたら、お手数ですが お問い合わせフォームよりご連絡ください。

近隣の条件が近い物件

東京都江東区青海2丁目4-24

地上21階 / 地下3階

207.42坪

ゆりかもめ テレコムセンター駅 0分

東京都江東区有明3丁目4-10

地上9階 / 地下2階

201.45坪

ゆりかもめ 東京ビッグサイト駅 1分

東京都江東区有明3丁目7-18

地上20階 / 地下1階

210.49坪 〜 210.78坪

ゆりかもめ 東京ビッグサイト駅 4分

東京都港区芝浦4丁目9-25

地上21階 / 地下3階

205.59坪

JR山手線 田町駅 9分

東京都中央区晴海1丁目8-11

地上39階 / 地下4階

203.85坪

都営大江戸線 勝どき駅 4分

東京都中央区晴海2丁目1-40

地上17階建て

204.98坪

都営大江戸線 勝どき駅 10分

東京都品川区東品川4丁目12-3

地上23階 / 地下2階

200.78坪

りんかい線 品川シーサイド駅 1分

東京都品川区東品川4丁目12-6

地上22階 / 地下2階

200.08坪

りんかい線 品川シーサイド駅 1分

東京都港区港南2丁目15-3

地上31階 / 地下3階

199.93坪

JR山手線 品川駅 3分

東京都港区芝2丁目29-14

地上7階建て

200.79坪

都営三田線 三田駅 5分

東京都江東区枝川2丁目16-5

地上3階建て

203.49坪

東京メトロ有楽町線 豊洲駅 20分

東京都品川区東大井2丁目13-8

地上10階 / 地下1階

200.47坪

京急本線 立会川駅 4分

東京都港区虎ノ門1丁目1000番(地番)

地上29階 / 地下4階

204.66坪

東京メトロ銀座線 虎ノ門駅 1分

東京都中央区八丁堀4丁目5-4

地上9階建て

202.95坪

JR京葉線 八丁堀駅 3分

東京都品川区北品川5丁目9-11

地上14階 / 地下3階

197.8坪

JR山手線 大崎駅 8分

東京都港区虎ノ門4丁目1-28

地上23階 / 地下3階

205.79坪

東京メトロ日比谷線 神谷町駅 5分

東京都品川区東品川3丁目32-42

地上12階 / 地下1階

216.35坪

りんかい線 天王洲アイル駅 4分

掲載物件数:2,247件  4,107区画

お気に入りに追加