VORT三田Ⅱ(旧:クローバー三田) 2階

最終情報更新日:2025/08/20
ビルコード:1310304132
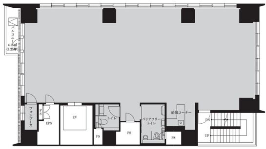
VORT三田Ⅱ(旧:クローバー三田) 2階 平面図

賃貸条件

所在階2階
用途事務所
面積44.29坪 / 146.41m²
賃料相談
共益費相談
坪単価-
預託金5ヶ月
入居時期即入居
その他費用償却: なし
礼金: なし
更新料・再契約料: 2ヶ月
天井高2,700mm
トイレ男女別
床仕様OAフロア

物件概要

所在地東京都港区芝5丁目25-2
交通
  • 都営浅草線 三田駅 4分
  • JR山手線 田町駅 6分
規模地上9階建て
竣工2023年7月
耐震基準新耐震基準
構造鉄筋コンクリート(RC造)
基準階天井高2,700mm

物件詳細・設備

エレベーター1基
空調個別空調
セキュリティ機械警備

VORT三田Ⅱ(旧:クローバー三田)の空室一覧

↓ 募集区画クリックで詳細情報をご覧いただけます

募集区画面積用途賃料+共益費坪単価(共益費込)入居時期平面図お気に入り
7階内装付44.42坪事務所相談-即入居
6階内装付44.42坪事務所相談-即入居
4階内装付44.34坪事務所相談-即入居
2階44.29坪事務所相談-即入居

※表⽰⾦額は、敷⾦・保証⾦などの預かり⾦を除き、別途消費税がかかります。 / ※間取図は現況を優先させていただきます。 / ※駐車場は建物設備としての有無のため、有の場合でも賃貸条件としての空きを保証するものではありません。 / ※掲載情報の誤りや変更、未掲載情報の掲載依頼がございましたら、お手数ですが お問い合わせフォームよりご連絡ください。

近隣の条件が近い物件

東京都港区芝4丁目7-1

地上8階 / 地下1階

44.18坪

都営浅草線 三田駅 3分

東京都港区三田2丁目14-5

地上10階 / 地下1階

39.85坪

都営三田線 三田駅 5分

東京都港区芝3丁目24-3

地上5階建て

46.88坪

都営浅草線 三田駅 6分

東京都港区三田1丁目4-28

地上26階 / 地下3階

41.32坪

都営大江戸線 赤羽橋駅 3分

東京都港区芝浦4丁目12-38

地上8階建て

42.46坪

JR山手線 田町駅 8分

東京都港区芝公園2丁目6-8

地上7階 / 地下1階

45.41坪

都営三田線 芝公園駅 3分

東京都港区麻布十番2丁目16-8

地上8階建て

44.85坪

都営大江戸線 麻布十番駅 2分

東京都港区芝3丁目3-14

地上7階 / 地下1階

40.76坪

都営三田線 芝公園駅 2分

東京都港区浜松町2丁目12-11

地上10階建て

44.06坪

JR山手線 浜松町駅 3分

東京都港区芝浦3丁目6-14

地上11階建て

48.14坪

JR山手線 田町駅 5分

東京都港区浜松町2丁目1-16

地上10階建て

43.66坪

都営浅草線 大門駅 1分

東京都港区芝公園2丁目9-3(予定)

地上5階建て

41.92坪

都営三田線 芝公園駅 4分

東京都港区芝公園3丁目4-30

地上10階 / 地下4階

45.57坪

都営三田線 御成門駅 6分

東京都港区芝公園3丁目5-8

地上6階 / 地下4階

44.2坪

東京メトロ日比谷線 神谷町駅 8分

東京都港区麻布十番2丁目11-5

地上4階 / 地下1階

46.1坪

東京メトロ南北線 麻布十番駅 3分

東京都港区芝4丁目5-11

地上10階 / 地下1階

50.23坪

都営三田線 三田駅 2分

東京都港区浜松町2丁目1-17

地上9階建て

42.17坪

都営浅草線 大門駅 1分

東京都港区芝大門1丁目2

地上13階建て

45.06坪

都営大江戸線 大門駅 2分

掲載物件数:2,303件  4,306区画

お気に入りに追加