ヒロビル(港区) 7階

最終情報更新日:2025/11/12
ビルコード:1310304064
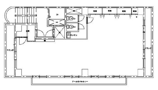
ヒロビル(港区) 7階 平面図
担当者からのコメント
天井、壁、床の仕様をお選びいただけるセレクトオフィスです。詳細はお気軽にご相談ください!外苑前駅出口からすぐの好立地です。

賃貸条件

所在階7階
用途事務所
面積34.63坪 / 114.48m²
賃料682,000円
共益費賃料に含む
坪単価19,693円/坪(共益費込)
預託金6ヶ月
入居時期相談
その他費用償却: 2ヶ月
礼金: なし
更新料・再契約料: 1ヶ月
トイレ男女別

物件概要

所在地東京都港区南青山2丁目24-10
交通
  • 東京メトロ銀座線 外苑前駅 1分
  • 東京メトロ半蔵門線 青山一丁目駅 7分
  • 東京メトロ千代田線 表参道駅 9分
規模地上8階建て
竣工2003年9月
耐震基準新耐震基準
構造鉄筋コンクリート(RC造)

物件詳細・設備

エレベーター1基
情報通信設備光ファイバー(MDFまで)
空調個別空調

ヒロビル(港区)の空室一覧

↓ 募集区画クリックで詳細情報をご覧いただけます

募集区画面積用途賃料+共益費坪単価(共益費込)入居時期平面図お気に入り
7階34.63坪事務所682,000円19,693円/坪相談
1階31.45坪事務所780,000円24,801円/坪即入居

※表⽰⾦額は、敷⾦・保証⾦などの預かり⾦を除き、別途消費税がかかります。 / ※間取図は現況を優先させていただきます。 / ※駐車場は建物設備としての有無のため、有の場合でも賃貸条件としての空きを保証するものではありません。 / ※掲載情報の誤りや変更、未掲載情報の掲載依頼がございましたら、お手数ですが お問い合わせフォームよりご連絡ください。

近隣の条件が近い物件

東京都港区南青山2丁目27-8

地上4階建て

35.78坪

東京メトロ銀座線 外苑前駅 3分

東京都港区南青山2丁目27-20

地上8階 / 地下1階

33.11坪

東京メトロ銀座線 外苑前駅 3分

東京都港区北青山2丁目7-25

地上10階 / 地下1階

32.78坪

東京メトロ銀座線 外苑前駅 2分

東京都港区南青山2丁目11-16

地上9階 / 地下1階

37.68坪

東京メトロ半蔵門線 青山一丁目駅 3分

東京都港区南青山2丁目6-12

地上5階 / 地下1階

31.29坪

東京メトロ銀座線 青山一丁目駅 4分

東京都渋谷区神宮前3丁目22-12

地上5階建て

30.62坪 〜 35.21坪

東京メトロ千代田線 明治神宮前<原宿>駅 6分

東京都渋谷区神宮前4丁目14-20

地上2階 / 地下1階

37.08坪

東京メトロ銀座線 表参道駅 4分

東京都港区南青山4丁目23-6

地上3階 / 地下1階

32.5坪

東京メトロ千代田線 表参道駅 8分

東京都港区南青山3丁目5-2

地上3階建て

28.74坪

東京メトロ銀座線 外苑前駅 7分

東京都港区西麻布1丁目4-48

地上5階 / 地下2階

36.5坪

東京メトロ日比谷線 六本木駅 6分

東京都渋谷区渋谷2丁目9-8

地上11階建て

34.55坪 〜 34.55坪

JR山手線 渋谷駅 6分

東京都港区北青山2丁目11-9

地上4階建て

27.49坪

東京メトロ銀座線 外苑前駅 4分

東京都渋谷区渋谷2丁目10-15

地上10階建て

34.17坪

JR山手線 渋谷駅 8分

東京都港区南青山1丁目4-2

地上8階建て

28.53坪

東京メトロ銀座線 青山一丁目駅 2分

掲載物件数:2,366件  4,299区画

お気に入りに追加