九段下SSTビル 6階

最終情報更新日:2025/11/01
ビルコード:1310103043
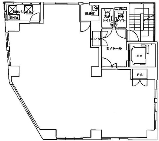
九段下SSTビル 6階 平面図

賃貸条件

所在階6階
用途事務所
面積22.91坪 / 75.73m²
賃料相談
共益費80,185円
坪単価-
預託金10ヶ月
入居時期2026年3月上旬
その他費用償却: なし
更新料・再契約料: なし
天井高2,700mm
トイレ男女別
床仕様OAフロア

物件概要

所在地東京都千代田区神田神保町3丁目4-29
交通
  • 東京メトロ東西線 九段下駅 1分
規模地上8階建て
竣工2008年9月
耐震基準新耐震基準
構造鉄筋コンクリート(RC造)
基準階天井高2,700mm

物件詳細・設備

エレベーター1基
情報通信設備光ファイバー引込済
空調個別空調
セキュリティ機械警備

九段下SSTビルの空室一覧

↓ 募集区画クリックで詳細情報をご覧いただけます

募集区画面積用途賃料+共益費坪単価(共益費込)入居時期平面図お気に入り
6階22.91坪事務所相談-2026年3月上旬

※表⽰⾦額は、敷⾦・保証⾦などの預かり⾦を除き、別途消費税がかかります。 / ※間取図は現況を優先させていただきます。 / ※駐車場は建物設備としての有無のため、有の場合でも賃貸条件としての空きを保証するものではありません。 / ※掲載情報の誤りや変更、未掲載情報の掲載依頼がございましたら、お手数ですが お問い合わせフォームよりご連絡ください。

近隣の条件が近い物件

東京都千代田区神田神保町2丁目10-14

地上8階建て

22.21坪

東京メトロ半蔵門線 神保町駅 2分

東京都千代田区神田神保町2丁目5-11

地上8階 / 地下1階

23.21坪 〜 25.05坪

東京メトロ半蔵門線 神保町駅 1分

東京都千代田区神田神保町1丁目38-1

地上5階建て

24.0坪

東京メトロ半蔵門線 神保町駅 3分

東京都千代田区飯田橋2丁目9-10

地上5階建て

23.0坪

東京メトロ東西線 飯田橋駅 3分

東京都千代田区神田猿楽2丁目7-11

地上7階建て

22.67坪

JR中央・総武線 水道橋駅 3分

東京都千代田区神田三崎町1丁目4-8

地上10階建て

24.5坪

JR中央・総武線 水道橋駅 1分

東京都千代田区飯田橋3丁目4-4

地上11階建て

24.0坪

東京メトロ東西線 飯田橋駅 1分

東京都千代田区飯田橋3丁目9-8

地上6階建て

23.47坪

JR中央・総武線 飯田橋駅 3分

東京都千代田区神田神保町1丁目-22

地上7階建て

21.07坪

東京メトロ半蔵門線 神保町駅 4分

東京都千代田区神田三崎町2丁目15-10

地上5階建て

25.04坪

JR中央・総武線 水道橋駅 2分

東京都千代田区神田三崎町3丁目10-2

地上7階建て

24.69坪

JR中央・総武線 水道橋駅 2分

東京都千代田区神田神保町2丁目32

地上7階 / 地下1階

26.68坪

東京メトロ半蔵門線 神保町駅 4分

東京都千代田区飯田橋3丁目4-6

地上9階 / 地下1階

24.35坪

JR中央・総武線 飯田橋駅 4分

東京都千代田区神田猿楽町1丁目2-3

地上10階建て

20.5坪

東京メトロ半蔵門線 神保町駅 4分

東京都千代田区神田三崎町2丁目9-6

地上7階建て

20.0坪

JR中央・総武線 水道橋駅 3分

東京都文京区本郷1丁目12-6

地上5階 / 地下1階

21.4坪

都営三田線 水道橋駅 1分

掲載物件数:2,258件  4,128区画

お気に入りに追加