
賃貸条件
| 所在階 | 4階 |
|---|---|
| 用途 | 事務所 |
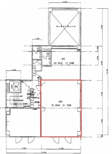
| 面積 | 21.78坪 / 71.99m² |
| 賃料 | 326,700円 |
| 共益費 | 21,780円 |
| 坪単価 | 16,000円/坪(共益費込) |
| 預託金 | 5ヶ月 |
| 入居時期 | 2026年2月中旬 |
| その他費用 | 償却: 2ヶ月 礼金: なし 更新料・再契約料: 1ヶ月 |
| トイレ | 男女別 |
| 床仕様 | タイルカーペット |
物件概要
| 所在地 | 東京都台東区東上野3丁目13-2 |
|---|---|
| 交通 |
|
| 規模 | 地上7階 / 地下1階 |
| 竣工 | 1975年4月 |
| 構造 | 鉄骨鉄筋コンクリート(SRC造) |
| 基準階坪数 | 55.18坪 |
物件詳細・設備
| エレベーター | 1基 |
|---|---|
| 駐車場 | あり 機械式 30台 |
| 情報通信設備 | 光ファイバー |
| 空調 | 個別空調 |
| セキュリティ | 機械警備 |
| リニューアル履歴 | 2002年 全面改装済 |
※表⽰⾦額は、敷⾦・保証⾦などの預かり⾦を除き、別途消費税がかかります。 / ※間取図は現況を優先させていただきます。 / ※駐車場は建物設備としての有無のため、有の場合でも賃貸条件としての空きを保証するものではありません。 / ※掲載情報の誤りや変更、未掲載情報の掲載依頼がございましたら、お手数ですが お問い合わせフォームよりご連絡ください。
近隣の条件が近い物件
掲載物件数:2,413件
4,379区画























建物詳細
AYビル(台東区東上野3丁目)は、上野駅徒歩3分の賃貸オフィスビルです。
建物の規模は地上7階・地下1階建て、竣工は1975年4月で、2002年に全面リニューアルがされています。エレベーターは1基あります。
最新の空室状況や賃料・賃貸条件など、お気軽にお問合せ下さい。