NEW
西新宿パークウエストビル(PARKWEST・パークウェスト) 11階1101
西新宿公園通り沿い、1階はりそな銀行のオフィスビル
最終情報更新日:2025/12/10
ビルコード:1310400584

賃貸条件
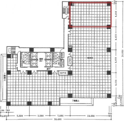
| 所在階 | 11階 |
|---|---|
| 用途 | 事務所 |
| 面積 | 42.43坪 / 140.26m² |
| 賃料 | 848,600円 |
| 共益費 | 169,720円 |
| 坪単価 | 24,000円/坪(共益費込) |
| 預託金 | 10ヶ月 |
| 入居時期 | 2026年3月中旬 |
| その他費用 | 償却: なし 礼金: 1ヶ月 更新料・再契約料: なし |
| 天井高 | 2,700mm |
| トイレ | 男女別 |
物件概要
| 所在地 | 東京都新宿区西新宿6丁目12-1 |
|---|---|
| 交通 |
|
| 規模 | 地上13階 / 地下2階 |
| 竣工 | 1994年1月 |
| 耐震基準 | 新耐震基準 |
| 構造 | 鉄筋コンクリート(RC造) |
| 基準階坪数 | 252.79坪 |
物件詳細・設備
| エレベーター | 4基 |
|---|---|
| 駐車場 | あり 機械式・平面式併設 |
| 情報通信設備 | 光ファイバー |
| 空調 | 個別空調 |
| セキュリティ | 機械警備・有人管理 |
西新宿パークウエストビル(PARKWEST・パークウェスト)の空室一覧
↓ 募集区画クリックで詳細情報をご覧いただけます
| 募集区画 | 面積 | 用途 | 賃料+共益費 | 坪単価(共益費込) | 入居時期 | 平面図 | お気に入り |
|---|---|---|---|---|---|---|---|
| 13階1301~1303 | 120.93坪 | 事務所 | 相談 | - | 即入居 | ||
| NEW11階1101 | 42.43坪 | 事務所 | 1,018,320円 | 24,000円/坪 | 2026年3月中旬 | ||
| 10階1002~1004 | 127.29坪 | 事務所 | 3,054,960円 | 24,000円/坪 | 即入居 | ||
| 9階906~908 | 63.58坪 | 事務所 | 相談 | - | 即入居 |
※表⽰⾦額は、敷⾦・保証⾦などの預かり⾦を除き、別途消費税がかかります。 / ※間取図は現況を優先させていただきます。 / ※駐車場は建物設備としての有無のため、有の場合でも賃貸条件としての空きを保証するものではありません。 / ※掲載情報の誤りや変更、未掲載情報の掲載依頼がございましたら、お手数ですが お問い合わせフォームよりご連絡ください。
近隣の条件が近い物件
掲載物件数:2,434件
4,403区画



























建物詳細
西新宿パークウエストビル(PARKWEST)(新宿区西新宿6丁目12-1)は、東京メトロ丸ノ内線 西新宿駅徒歩3分の賃貸オフィスビルです。
ビルの竣工は1994年1月(新耐震基準)、建物規模は地上13階・地下2階建てです。エレベーターは4基設置されています。
基準階貸室面積は252.79坪、設備面では、機械警備・個別空調・OAフロア・男女別トイレなどの仕様となっています。
最新の空室状況や賃料・賃貸条件など、お気軽にお問合せ下さい。