03-6264-1890
受付時間 9:00 - 18:30 定休日 土日祝
受付時間 9:00 - 18:30 定休日 土日祝
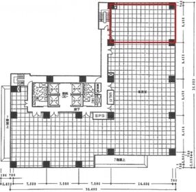
西新宿パークウエストビル(PARKWEST・パークウェスト) 11階1101
物件情報
| 所在地 | 東京都新宿区西新宿6丁目12-1 |
|---|---|
| 最寄駅 | 東京メトロ丸ノ内線 西新宿駅 3分 都営大江戸線 都庁前駅 4分 |
| 竣工 | 1994年1月 |
| 階数 | 地上13階 / 地下2階 |
| エレベーター | 4基 |
賃貸条件
| 募集区画 | 11階1101 |
|---|---|
| 賃料(共益費) | 848,600円(169,720円) |
| 敷金/礼金 | 10ヶ月/1ヶ月 |
| 保証金 /敷引/償却 | -/-/なし |
| 面積 | 42.43坪 |
| 入居条件 | 2026年3月中旬 |