
賃貸条件
| 所在階 | 4階 |
|---|---|
| 用途 | 事務所 |
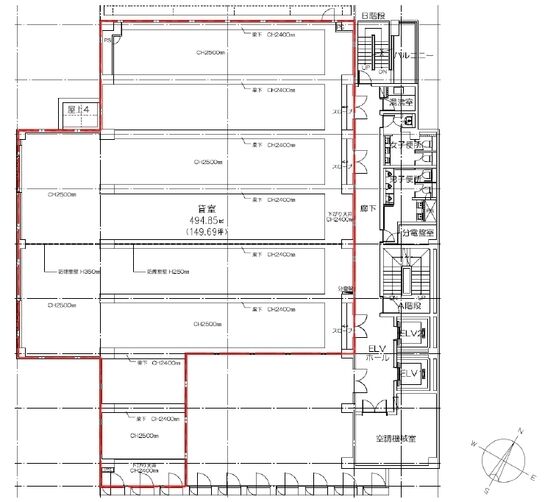
| 面積 | 149.69坪 / 494.84m² |
| 賃料 | 相談 |
| 共益費 | 賃料に含む |
| 坪単価 | - |
| 預託金 | 12ヶ月 |
| 入居時期 | 2026年6月上旬 |
| トイレ | 男女別 |
| 床仕様 | OAフロア |
物件概要
| 所在地 | 東京都港区六本木7丁目15-7 |
|---|---|
| 交通 |
|
| 規模 | 地上9階 / 地下1階 |
| 竣工 | 1978年7月 |
| 構造 | 鉄骨鉄筋コンクリート(SRC造) |
| 基準階坪数 | 179.82坪 |
| 基準階天井高 | 2,460mm |
| 延床面積 | 7,501.0㎡ |
物件詳細・設備
| エレベーター | 2基 |
|---|---|
| 駐車場 | あり 44台 |
| 情報通信設備 | 光ファイバー |
| 空調 | 個別空調 |
| セキュリティ | 機械警備 |
| 建物設備 | 1階には銀行(みずほ銀行)が入居。
5~9階はオープンイノベーション施設「SENQ六本木」ラウンジ・貸会議室(別途料金)あり |
新六本木ビル(SENQ六本木 5階~9階)の空室一覧
↓ 募集区画クリックで詳細情報をご覧いただけます
| 募集区画 | 面積 | 用途 | 賃料+共益費 | 坪単価(共益費込) | 入居時期 | 平面図 | お気に入り |
|---|---|---|---|---|---|---|---|
| NEW4階 | 149.69坪 | 事務所 | 相談 | - | 2026年6月上旬 |
※表⽰⾦額は、敷⾦・保証⾦などの預かり⾦を除き、別途消費税がかかります。 / ※間取図は現況を優先させていただきます。 / ※駐車場は建物設備としての有無のため、有の場合でも賃貸条件としての空きを保証するものではありません。 / ※掲載情報の誤りや変更、未掲載情報の掲載依頼がございましたら、お手数ですが お問い合わせフォームよりご連絡ください。
近隣の条件が近い物件
掲載物件数:2,249件
4,109区画























担当者からのコメント
居抜き(内装付・什器なし、MTGルーム1、2のみ、什器残置予定)ご相談となっております。貸室に加えて、9階のラウンジやテラス、貸会議室等(有料)がご利用可能です。ぜひお気軽にご相談ください。