ホウゲン建設ビル 1階

2024年8月竣工、高南通りに面した好立地!
最終情報更新日:2025/10/22
ビルコード:1311500023
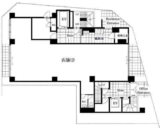
ホウゲン建設ビル 1階 平面図

賃貸条件

所在階1階
用途店舗
面積38.81坪 / 128.32m²
賃料1,050,000円
共益費10,000円
坪単価27,312円/坪(共益費込)
預託金相談
入居時期即入居
その他費用償却: 30%
トイレ男女共用

物件概要

所在地東京都杉並区高円寺南4丁目24-13
交通
  • JR中央線(快速) 高円寺駅 2分
  • 東京メトロ丸ノ内線 新高円寺駅 10分
規模地上9階 / 地下1階
竣工2024年8月
耐震基準新耐震基準
構造鉄筋コンクリート(RC造)

物件詳細・設備

エレベーター2基

ホウゲン建設ビルの空室一覧

↓ 募集区画クリックで詳細情報をご覧いただけます

募集区画面積用途賃料+共益費坪単価(共益費込)入居時期平面図お気に入り
2階49.72坪事務所、店舗860,000円17,296円/坪即入居
1階38.81坪店舗1,060,000円27,312円/坪即入居
地下1階36.43坪店舗610,000円16,744円/坪即入居

※表⽰⾦額は、敷⾦・保証⾦などの預かり⾦を除き、別途消費税がかかります。 / ※間取図は現況を優先させていただきます。 / ※駐車場は建物設備としての有無のため、有の場合でも賃貸条件としての空きを保証するものではありません。 / ※掲載情報の誤りや変更、未掲載情報の掲載依頼がございましたら、お手数ですが お問い合わせフォームよりご連絡ください。

近隣の条件が近い物件

東京都新宿区西新宿6丁目21-1

地上31階 / 地下4階

38.14坪

都営大江戸線 都庁前駅 6分

東京都渋谷区笹塚2丁目18-3

地上10階 / 地下1階

39.99坪

京王線 笹塚駅 3分

東京都新宿区西新宿8丁目5-5

地上9階建て

38.32坪

東京メトロ丸ノ内線 西新宿駅 1分

東京都新宿区西新宿2丁目1-1

地上55階 / 地下3階

35.58坪 〜 37.31坪

都営大江戸線 都庁前駅 1分

東京都新宿区西新宿2丁目7-1

地上26階 / 地下4階

34.34坪 〜 36.31坪

都営大江戸線 都庁前駅 2分

東京都中野区中野3丁目33-18

地上11階 / 地下1階

24.7坪

JR中央線(快速) 中野駅 4分

東京都新宿区西新宿1丁目26-2

地上50階 / 地下5階

36.24坪

JR山手線 新宿駅 7分

東京都杉並区荻窪5丁目26-13

地上7階 / 地下1階

30.27坪

JR中央線(快速) 荻窪駅 1分

東京都新宿区西新宿2丁目3-1

地上30階 / 地下3階

35.97坪

JR山手線 新宿駅 2分

東京都新宿区西新宿7丁目5-8

地上10階建て

41.37坪

都営大江戸線 新宿西口駅 5分

東京都新宿区西新宿6丁目12-4

地上12階建て

33.0坪

東京メトロ丸ノ内線 西新宿駅 5分

東京都新宿区西新宿4丁目32-4

地上13階建て

33.12坪

都営大江戸線 都庁前駅 6分

東京都渋谷区代々木3丁目26-2

地上10階建て

43.23坪

京王線 初台駅 7分

東京都新宿区新宿4丁目3-15 レイフラット新宿A棟2階

地上12階 / 地下1階

36.4坪

東京メトロ丸ノ内線 新宿三丁目駅 1分

東京都新宿区高田馬場2丁目1-2

地上12階建て

36.83坪

東京メトロ副都心線 西早稲田駅 4分

東京都渋谷区代々木1丁目32-11

地上9階 / 地下1階

41.37坪

JR山手線 代々木駅 1分

掲載物件数:2,336件  4,288区画

お気に入りに追加