
賃貸条件
所在階 | 5階内装付 |
---|---|
用途 | 事務所 |
面積 | 18.49坪 / 61.135m² |
賃料 | 相談 |
共益費 | 賃料に含む |
坪単価 | - |
預託金 | 8ヶ月 |
入居時期 | 2025年12月下旬 |
その他費用 | 償却: なし 礼金: なし 更新料・再契約料: なし |
トイレ | 男女別 |
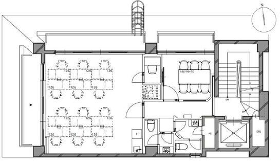
その他 | 執務室、6名用会議室×1、テレカンブース有 |
物件概要
所在地 | 東京都港区芝大門1丁目6-1 |
---|---|
交通 |
|
規模 | 地上5階 / 地下1階 |
竣工 | 1984年7月 |
耐震基準 | 新耐震基準 |
構造 | 鉄骨鉄筋コンクリート(SRC造) |
基準階天井高 | 2,800mm |
物件詳細・設備
エレベーター | 1基 |
---|---|
駐車場 | なし |
情報通信設備 | 光ファイバー |
空調 | 個別空調 |
セキュリティ | 機械警備 |
リニューアル履歴 | 2026年3月 大規模リニューアル予定 |
※表⽰⾦額は、敷⾦・保証⾦などの預かり⾦を除き、別途消費税がかかります。 / ※間取図は現況を優先させていただきます。 / ※駐車場は建物設備としての有無のため、有の場合でも賃貸条件としての空きを保証するものではありません。 / ※掲載情報の誤りや変更、未掲載情報の掲載依頼がございましたら、お手数ですが お問い合わせフォームよりご連絡ください。
近隣の条件が近い物件
掲載物件数:2,258件
4,159区画