03-6264-1890
受付時間 9:00 - 18:30 定休日 土日祝
受付時間 9:00 - 18:30 定休日 土日祝
ARZ芝大門(芝大門PJ、旧:芝大門エフビル) 5階



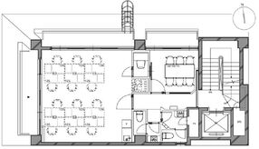
物件情報
所在地 | 東京都港区芝大門1丁目6-1 |
---|---|
最寄駅 | 都営大江戸線 大門駅 3分 都営三田線 御成門駅 6分 JR山手線 浜松町駅 8分 |
竣工 | 1984年7月 |
階数 | 地上5階 / 地下1階 |
エレベーター | 1基 |
賃貸条件
募集区画 | 5階 |
---|---|
賃料(共益費) | 相談(賃料に含む) |
敷金/礼金 | 8ヶ月/なし |
保証金 /敷引/償却 | -/-/なし |
面積 | 18.49坪 |
入居条件 | 2025年12月下旬 |