
賃貸条件
| 所在階 | 5階 |
|---|---|
| 用途 | 事務所 |
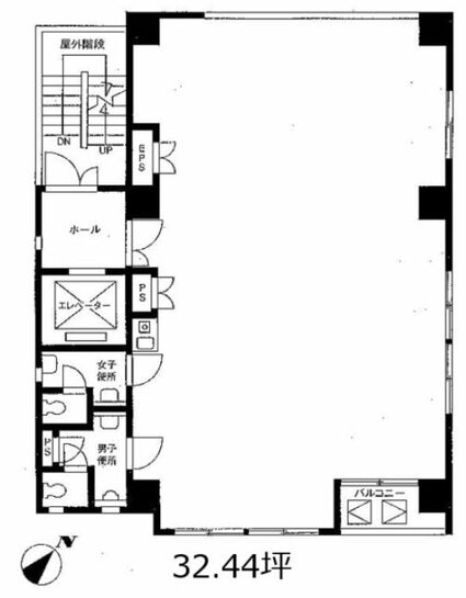
| 面積 | 32.44坪 / 107.24m² |
| 賃料 | 389,280円 |
| 共益費 | 32,440円 |
| 坪単価 | 13,000円/坪(共益費込) |
| 預託金 | 6ヶ月 |
| 入居時期 | 2026年5月上旬 |
| その他費用 | 償却: なし 礼金: なし 更新料・再契約料: 新賃料1ヶ月 |
| 天井高 | 2,400mm |
| トイレ | 男女別 |
| 床仕様 | OAフロア |
物件概要
| 所在地 | 東京都目黒区目黒2丁目15-14 |
|---|---|
| 交通 |
|
| 規模 | 地上8階 / 地下1階 |
| 竣工 | 1990年11月 |
| 耐震基準 | 新耐震基準 |
| 構造 | 鉄骨鉄筋コンクリート(SRC造) |
| 基準階坪数 | 32.44坪 |
| 基準階天井高 | 2,400mm |
物件詳細・設備
| エレベーター | 1基 |
|---|---|
| 駐車場 | なし |
| 情報通信設備 | 光ファイバー(MDFまで) |
| 空調 | 個別空調 |
| セキュリティ | 機械警備 |
※表⽰⾦額は、敷⾦・保証⾦などの預かり⾦を除き、別途消費税がかかります。 / ※間取図は現況を優先させていただきます。 / ※駐車場は建物設備としての有無のため、有の場合でも賃貸条件としての空きを保証するものではありません。 / ※掲載情報の誤りや変更、未掲載情報の掲載依頼がございましたら、お手数ですが お問い合わせフォームよりご連絡ください。
近隣の条件が近い物件
掲載物件数:2,390件
4,343区画



























建物詳細
目黒FSDビル(目黒区目黒)は、中目黒駅徒歩11分の賃貸オフィスビルです。
建物は地上8階地下1階建て、竣工は1990年11月(新耐震基準)です。
エレベーターは1基あります。基準階フロア面積は32.44坪、基準階天井高は2400mmです。
最新の空室状況や賃料・賃貸条件など、お気軽にお問合せ下さい。