
賃貸条件
| 所在階 | 6階 |
|---|---|
| 用途 | 事務所、店舗 |
| 面積 | 17.0坪 / 56.19m² |
| 賃料 | 相談 |
| 共益費 | 相談 |
| 坪単価 | - |
| 預託金 | 5ヶ月 |
| 入居時期 | 即入居 |
| その他費用 | 償却: なし 礼金: なし 更新料・再契約料: 1ヶ月 |
| 天井高 | 3,000mm |
| トイレ | 男女別 |
| 床仕様 | OAフロア |
| その他 | 美容サロン、パーソナルジム等サービス店舗、カフェ、バー等軽飲⾷可※重飲⾷、物販、カラオケ等の⼤きな⾳が出る業種は不可、カフェ、バー等軽飲⾷可/ガス引込有 |
物件概要
| 所在地 | 東京都渋谷区渋谷1丁目7-2 |
|---|---|
| 交通 |
|
| 規模 | 地上11階建て |
| 竣工 | 2025年6月 |
| 耐震基準 | 新耐震基準 |
| 構造 | 鉄骨(S造) |
| 基準階天井高 | 3,000mm |
| 延床面積 | 686.39㎡ |
物件詳細・設備
| エレベーター | 1基 |
|---|---|
| 駐車場 | なし |
| 情報通信設備 | 光ファイバー |
| 空調 | 個別空調 |
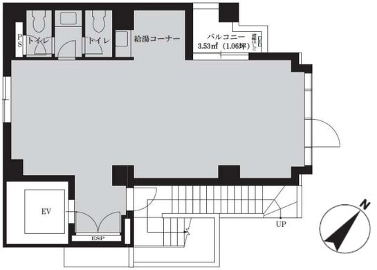
※表⽰⾦額は、敷⾦・保証⾦などの預かり⾦を除き、別途消費税がかかります。 / ※間取図は現況を優先させていただきます。 / ※駐車場は建物設備としての有無のため、有の場合でも賃貸条件としての空きを保証するものではありません。 / ※掲載情報の誤りや変更、未掲載情報の掲載依頼がございましたら、お手数ですが お問い合わせフォームよりご連絡ください。
近隣の条件が近い物件
掲載物件数:2,423件
4,415区画




















