NEW

東邦ビル 4階

最終情報更新日:2025/10/10
ビルコード:1311303118
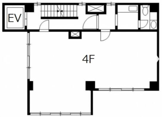
東邦ビル 4階 平面図

賃貸条件

所在階4階
用途事務所
面積20.0坪 / 66.11m²
賃料440,000円
共益費賃料に含む
坪単価22,000円/坪(共益費込)
預託金6ヶ月
入居時期2025年12月上旬
その他費用償却: なし
礼金: 2ヶ月
更新料・再契約料: 1ヶ月
トイレ男女共用

物件概要

所在地東京都渋谷区神宮前6丁目19-3
交通
  • 東急東横線 渋谷駅 3分
  • JR山手線 渋谷駅 7分
  • 東京メトロ副都心線 明治神宮前<原宿>駅 7分
規模地上10階 / 地下1階
竣工1970年8月
構造鉄骨鉄筋コンクリート(SRC造)
基準階坪数42.35坪

物件詳細・設備

エレベーター1基
駐車場あり

東邦ビルの空室一覧

↓ 募集区画クリックで詳細情報をご覧いただけます

募集区画面積用途賃料+共益費坪単価(共益費込)入居時期平面図お気に入り
NEW4階20.0坪事務所440,000円22,000円/坪2025年12月上旬

※表⽰⾦額は、敷⾦・保証⾦などの預かり⾦を除き、別途消費税がかかります。 / ※間取図は現況を優先させていただきます。 / ※駐車場は建物設備としての有無のため、有の場合でも賃貸条件としての空きを保証するものではありません。 / ※掲載情報の誤りや変更、未掲載情報の掲載依頼がございましたら、お手数ですが お問い合わせフォームよりご連絡ください。

近隣の条件が近い物件

東京都渋谷区神宮前6丁目33-11

地上5階 / 地下1階

22.23坪

東京メトロ千代田線 明治神宮前<原宿>駅 2分

東京都渋谷区渋谷2丁目1-9

地上11階建て

23.01坪

東京メトロ半蔵門線 表参道駅 5分

東京都渋谷区渋谷2丁目22-11

地上10階 / 地下1階

20.96坪

JR山手線 渋谷駅 1分

東京都渋谷区渋谷1丁目10-3

地上11階建て

25.22坪

JR山手線 渋谷駅 6分

東京都渋谷区神宮前3丁目22-12

地上5階建て

23.35坪 〜 24.41坪

東京メトロ千代田線 明治神宮前<原宿>駅 6分

東京都渋谷区渋谷1丁目8-6

地上9階建て

25.77坪

JR山手線 渋谷駅 5分

東京都渋谷区渋谷3丁目8-12

地上10階建て

24.36坪

JR山手線 渋谷駅 3分

東京都渋谷区代官山2-3

地上5階 / 地下1階

21.79坪

東急東横線 代官山駅 8分

東京都渋谷区渋谷2丁目14-10

地上8階 / 地下1階

25.63坪

東京メトロ半蔵門線 渋谷駅 6分

東京都渋谷区道玄坂1丁目15-12

地上7階 / 地下1階

24.2坪

JR山手線 渋谷駅 5分

東京都渋谷区円山町5-18

地上5階建て

23.62坪

JR山手線 渋谷駅 6分

東京都渋谷区桜丘町20-12

地上3階建て

23.61坪

JR山手線 渋谷駅 5分

東京都渋谷区神南1丁目6-5

地上10階建て

11.55坪 〜 12.16坪

JR山手線 渋谷駅 7分

東京都渋谷区渋谷1丁目1-16

地上6階建て

26.53坪

JR山手線 渋谷駅 7分

東京都渋谷区道玄坂1丁目19-13

地上10階 / 地下1階

24.15坪

京王井の頭線 神泉駅 3分

東京都渋谷区道玄坂1丁目10-7

地上8階 / 地下3階

25.34坪

京王井の頭線 渋谷駅 2分

掲載物件数:2,237件  4,134区画

お気に入りに追加