
賃貸条件
| 所在階 | 8階 |
|---|---|
| 用途 | 事務所 |
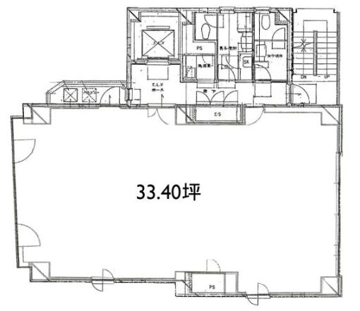
| 面積 | 33.4坪 / 110.41m² |
| 賃料 | 相談 |
| 共益費 | 賃料に含む |
| 坪単価 | - |
| 預託金 | 12ヶ月 |
| 入居時期 | 2026年6月上旬 |
| その他費用 | 償却: なし 礼金: なし 更新料・再契約料: なし |
| 天井高 | 2,500mm |
| トイレ | 男女別 |
| 床仕様 | OAフロア・タイルカーペット |
物件概要
| 所在地 | 東京都港区芝3丁目16-12 |
|---|---|
| 交通 |
|
| 規模 | 地上10階 / 地下1階 |
| 竣工 | 1991年1月 |
| 耐震基準 | 新耐震基準 |
| 構造 | 鉄骨鉄筋コンクリート(SRC造) |
| 基準階坪数 | 40.63坪 |
| 基準階天井高 | 2,500mm |
物件詳細・設備
| エレベーター | 1基 |
|---|---|
| 駐車場 | なし |
| 情報通信設備 | 光ファイバー |
| 空調 | 個別空調 |
| セキュリティ | 機械警備 |
※表⽰⾦額は、敷⾦・保証⾦などの預かり⾦を除き、別途消費税がかかります。 / ※間取図は現況を優先させていただきます。 / ※駐車場は建物設備としての有無のため、有の場合でも賃貸条件としての空きを保証するものではありません。 / ※掲載情報の誤りや変更、未掲載情報の掲載依頼がございましたら、お手数ですが お問い合わせフォームよりご連絡ください。
近隣の条件が近い物件
掲載物件数:2,388件
4,334区画













建物詳細
サンライズ三田ビル(港区芝3丁目)は、最寄りの大江戸線「赤羽橋」駅徒歩4分、「芝公園」駅徒歩6分の賃貸オフィスビルです。
建物の規模は地上10階・地下1階建て、竣工は1991年1月(新耐震基準)、エレベーターは1基設置されています。
基準階のフロア面積は40.63坪、天井高は2500mm、機械警備・個別空調・OAフロア・男女別トイレなどの設備が整っています。
最新の空室状況や賃料・賃貸条件など、お気軽にお問合せ下さい。