NEW

新宿サンエービル(西新宿) 15階

大小分割区画あり。設備の整った大型オフィスビル
最終情報更新日:2026/02/10
ビルコード: 1310401273
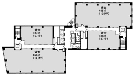
新宿サンエービル(西新宿) 15階 平面図
建物詳細

新宿サンエービル(新宿区西新宿1丁目)は、JR山手線 新宿駅徒歩5分の賃貸オフィスビルです。

ビルの竣工は1979年12月、建物規模は地上15階・地下2階建てです。

2012年 リニューアル済。エレベーターは5基あります。

貸室基準階のフロア面積は389.01坪、天井高は2450mmです。

設備面では、機械警備・OAフロア・男女別トイレなどが備わっています。

最新の空室状況や賃料・賃貸条件など、お気軽にお問合せ下さい。

賃貸条件

所在階 15階
用途 事務所
面積 135.13坪 / 446.71m²
賃料 相談
共益費 相談
坪単価 -
預託金 12ヶ月
入居時期 2026年7月下旬
天井高 2,450mm
トイレ 男女別
床仕様 OAフロア

物件概要

所在地 東京都新宿区西新宿1丁目22-2
交通
  • JR山手線 新宿駅 5分
  • 都営新宿線 新宿駅 1分
規模 地上15階 / 地下2階
竣工 1979年12月
構造 鉄骨(S造)
基準階坪数 389.01坪
基準階天井高 2,450mm
延床面積 32,664.18㎡

物件詳細・設備

エレベーター 5基
駐車場 あり 機械式・平面式併設 110台
情報通信設備 光ファイバー
空調 セントラル空調
セキュリティ 機械警備・有人管理
建物設備 B1Fに貸会議室あり
リニューアル履歴 2012年 リニューアル済

新宿サンエービル(西新宿)の空室一覧

↓ 募集区画クリックで詳細情報をご覧いただけます

募集区画 面積 用途 賃料+共益費 坪単価(共益費込) 入居時期 平面図 お気に入り
NEW 15階 135.13坪 事務所 相談 - 2026年7月下旬

近隣の条件が近い物件

東京都新宿区西新宿1丁目24-1

地上28階 / 地下4階

141.8坪 〜 146.29坪

JR山手線 新宿駅 5分

東京都新宿区西新宿2丁目1-1

地上55階 / 地下3階

127.02坪

都営大江戸線 都庁前駅 1分

東京都新宿区西新宿6丁目12-1

地上13階 / 地下2階

127.29坪

東京メトロ丸ノ内線 西新宿駅 3分

東京都新宿区西新宿1丁目21-1

地上14階 / 地下1階

121.3坪

都営大江戸線 新宿駅 1分

東京都新宿区西新宿6丁目22-1

地上31階 / 地下4階

143.71坪

都営大江戸線 都庁前駅 5分

東京都新宿区西新宿8丁目4-2

地上9階 / 地下1階

145.54坪

東京メトロ丸ノ内線 西新宿駅 1分

東京都新宿区西新宿3丁目6-4

地上11階 / 地下1階

123.21坪

都営大江戸線 都庁前駅 6分

東京都渋谷区神宮前1丁目8-17

地上3階建て

132.19坪

東京メトロ千代田線 明治神宮前<原宿>駅 3分

東京都新宿区西新宿8丁目5-1

地上8階 / 地下1階

123.07坪

東京メトロ丸ノ内線 西新宿駅 1分

東京都新宿区西新宿8丁目12-1

地上12階建て

147.0坪

東京メトロ丸ノ内線 西新宿駅 1分

東京都新宿区西新宿7丁目22-35

地上4階 / 地下1階

123.52坪

西武新宿線 西武新宿駅 5分

東京都新宿区大京町22-1

地上8階 / 地下1階

128.28坪

東京メトロ丸ノ内線 四谷三丁目駅 5分

東京都渋谷区渋谷2丁目12-4

地上12階 / 地下1階

136.63坪

JR山手線 渋谷駅 7分

※表示金額はすべて「税抜き表示」となっています。 / ※間取図は現況を優先させていただきます。 / ※駐車場は建物設備としての有無のため、有の場合でも賃貸条件としての空きを保証するものではありません。 / ※掲載情報の誤りや変更、未掲載情報の掲載依頼がございましたら、お手数ですが お問い合わせフォーム よりご連絡ください。

掲載物件数:2,418件  4,384区画

お気に入りに追加