03-6264-1890
受付時間 9:00 - 18:30 定休日 土日祝
受付時間 9:00 - 18:30 定休日 土日祝
新宿サンエービル(西新宿) 15階東
物件情報
| 所在地 | 東京都新宿区西新宿1丁目22-2 |
|---|---|
| 最寄駅 |
JR山手線 新宿駅 5分 都営新宿線 新宿駅 1分 |
| 竣工 | 1979年12月 |
| 階数 | 地上15階 / 地下2階 |
| エレベーター | 5基 |
賃貸条件
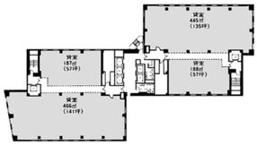
| 募集区画 | 15階東 |
|---|---|
| 賃料 (共益費) | 相談(581,059円) |
| 敷金 /礼金 | 12ヶ月/なし |
|
保証金
/敷引/償却 |
-/-/なし |
| 面積 | 135.13坪 |
| 入居条件 | 2026年7月下旬 |