MTビル(新宿区) 1階

最終情報更新日:2026/01/21
ビルコード:1310401652
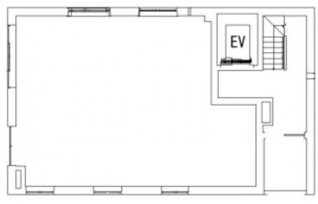
MTビル(新宿区) 1階 平面図
担当者からのコメント
スケルトン渡しとなりますが、空調・トイレ設備があります。/路面物件/サービス店舗・軽飲食店舗ご相談可

賃貸条件

所在階1階
用途事務所、店舗
面積24.6坪 / 81.35m²
賃料相談
共益費賃料に含む
坪単価-
預託金6ヶ月
入居時期即入居
その他費用償却: なし
礼金: 1ヶ月
更新料・再契約料: 新賃料1ヶ月
トイレ男女共用
その他1階専用自動ドア有

物件概要

所在地東京都新宿区市谷田町2丁目31-1
交通
  • 東京メトロ南北線 市ケ谷駅 3分
  • JR中央・総武線 市ケ谷駅 7分
  • 都営大江戸線 牛込神楽坂駅 10分
規模地上4階建て
竣工2016年11月
耐震基準新耐震基準
構造鉄骨(S造)

物件詳細・設備

エレベーターなし
駐車場あり
情報通信設備光ファイバー(引込可能)

MTビル(新宿区)の空室一覧

↓ 募集区画クリックで詳細情報をご覧いただけます

募集区画面積用途賃料+共益費坪単価(共益費込)入居時期平面図お気に入り
3階30115.52坪事務所287,120円18,500円/坪2026年5月中旬
1階24.6坪事務所、店舗相談-即入居

※表⽰⾦額は、敷⾦・保証⾦などの預かり⾦を除き、別途消費税がかかります。 / ※間取図は現況を優先させていただきます。 / ※駐車場は建物設備としての有無のため、有の場合でも賃貸条件としての空きを保証するものではありません。 / ※掲載情報の誤りや変更、未掲載情報の掲載依頼がございましたら、お手数ですが お問い合わせフォームよりご連絡ください。

近隣の条件が近い物件

東京都新宿区市谷田町3丁目6

地上10階建て

23.96坪

東京メトロ有楽町線 市ケ谷駅 4分

東京都新宿区市谷田町2丁目38-3

地上8階建て

26.86坪

東京メトロ有楽町線 市ケ谷駅 1分

東京都千代田区九段南3丁目9-14

地上10階建て

24.76坪 〜 25.09坪

JR中央・総武線 市ケ谷駅 4分

東京都千代田区九段南3丁目3-4

地上7階建て

24.16坪

都営新宿線 市ケ谷駅 4分

東京都千代田区九段南3丁目5-9

地上7階 / 地下1階

24.41坪

JR中央・総武線 市ケ谷駅 6分

東京都新宿区神楽坂6丁目76-76

地上5階建て

25.12坪

都営大江戸線 牛込神楽坂駅 3分

東京都千代田区六番町7-3

地上6階 / 地下1階

25.41坪

東京メトロ有楽町線 麹町駅 4分

東京都新宿区四谷坂町9-9

地上9階建て

24.31坪

JR中央・総武線 市ケ谷駅 7分

東京都千代田区三番町7-14

地上6階建て

22.49坪

JR中央・総武線 市ケ谷駅 5分

東京都新宿区神楽坂2-13

地上5階 / 地下1階

23.2坪 〜 26.0坪

JR中央・総武線 飯田橋駅 2分

東京都千代田区九段南4丁目8-30

地上10階 / 地下1階

20.98坪

都営新宿線 市ケ谷駅 1分

東京都千代田区一番町10

地上7階建て

25.88坪

東京メトロ半蔵門線 半蔵門駅 5分

東京都新宿区下宮比町3-13

地上5階 / 地下1階

25.0坪

JR中央・総武線 飯田橋駅 3分

東京都千代田区六番町5-5

地上4階 / 地下1階

23.0坪

JR中央線(快速) 四ツ谷駅 4分

東京都新宿区四谷三栄町15-32

地上4階 / 地下1階

24.48坪

JR中央・総武線 四ツ谷駅 4分

東京都千代田区九段南3丁目8-11

地上11階 / 地下1階

28.52坪

都営新宿線 市ケ谷駅 5分

東京都千代田区飯田橋3丁目4-4

地上11階建て

24.0坪

東京メトロ東西線 飯田橋駅 1分

東京都千代田区飯田橋3丁目4-6

地上9階 / 地下1階

24.35坪

JR中央・総武線 飯田橋駅 4分

掲載物件数:2,388件  4,334区画

お気に入りに追加