NEW

斉藤ビルディング 5階

最終情報更新日:2026/03/26
ビルコード: 1310400288
室内例 室内例
室内例 室内例
室内例
室内例
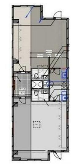
斉藤ビルディング 5階 平面図
建物詳細

斉藤ビルディング(新宿区四谷3丁目1-4)は、最寄りの「四谷三丁目」駅から徒歩2分の賃貸オフィスビルです。

規模は地上8階・地下1階建て、竣工は1982年2月、2023年1月にリニューアルが完了しております。基準階貸室面積は約36坪、EVホールを挟んで2つの部屋があるレイアウトとなっており、設備は機械警備・個別空調・OAフロア等の仕様となっております。

最新の空室状況や賃料・賃貸条件など、お気軽にお問合せ下さい。

賃貸条件

所在階 5階
用途 事務所
面積 36.4坪 / 120.33m²
賃料 相談
共益費 相談
坪単価 -
預託金 12ヶ月
入居時期 即入居
その他費用 償却: なし
礼金: なし
更新料・再契約料: 新賃料1ヶ月
天井高 2,350mm
トイレ 男女共用
床仕様 OAフロア

物件概要

所在地 東京都新宿区四谷3丁目1-4
交通
  • 東京メトロ丸ノ内線 四谷三丁目駅 2分
  • JR中央線(快速) 四ツ谷駅 8分
規模 地上8階 / 地下1階
竣工 1982年2月
耐震基準 新耐震基準
構造 鉄骨鉄筋コンクリート(SRC造)
基準階坪数 36.4坪

物件詳細・設備

エレベーター 1基
駐車場 なし
情報通信設備 光ファイバー
空調 個別空調
セキュリティ 機械警備
リニューアル履歴 2014年11月 追加耐震補強
2023年1月リニューアル

斉藤ビルディングの空室一覧

↓ 募集区画クリックで詳細情報をご覧いただけます

募集区画 面積 用途 賃料+共益費 坪単価(共益費込) 入居時期 平面図 お気に入り
NEW 8階B 17.6坪 事務所、店舗 相談 - 2026年5月上旬
6階AB 36.4坪 事務所、店舗 相談 - 即入居
NEW 5階 36.4坪 事務所 相談 - 即入居
5階B 17.6坪 事務所、店舗 相談 - 相談
4階B 17.6坪 事務所 相談 - 即入居

近隣の条件が近い物件

東京都新宿区四谷2丁目2-2

地上9階建て

37.49坪

東京メトロ南北線 四ツ谷駅 4分

東京都新宿区四谷1丁目3

地上10階建て

38.06坪

東京メトロ南北線 四ツ谷駅 1分

東京都新宿区四谷2丁目9

地上10階建て

31.56坪 〜 41.85坪

JR中央線(快速) 四ツ谷駅 5分

東京都新宿区四谷4丁目30-23

地上11階建て

37.25坪

東京メトロ丸ノ内線 新宿御苑前駅 4分

東京都新宿区内藤町1-5

地上5階 / 地下2階

34.31坪

東京メトロ丸ノ内線 新宿御苑前駅 8分

東京都新宿区四谷3丁目1-5

地上8階 / 地下1階

30.2坪

東京メトロ丸ノ内線 四谷三丁目駅 2分

東京都新宿区四谷1丁目2-31

地上9階 / 地下1階

39.61坪 〜 41.85坪

東京メトロ南北線 四ツ谷駅 1分

東京都新宿区新宿5丁目2-3

地上8階 / 地下1階

35.52坪

東京メトロ丸ノ内線 新宿御苑前駅 6分

東京都新宿区四谷2丁目12

地上7階建て

29.8坪

東京メトロ丸ノ内線 四谷三丁目駅 5分

東京都新宿区四谷本塩町4-41

地上11階 / 地下3階

32.75坪

JR中央線(快速) 四ツ谷駅 4分

東京都新宿区新宿1丁目12-12

地上9階 / 地下1階

33.9坪

東京メトロ丸ノ内線 新宿御苑前駅 2分

東京都新宿区新宿1丁目10-5

地上9階建て

33.43坪

東京メトロ丸ノ内線 新宿御苑前駅 1分

東京都新宿区四谷1丁目18

地上9階建て

31.3坪

JR中央・総武線 四ツ谷駅 3分

東京都新宿区内藤町1

地上10階 / 地下1階

32.05坪

東京メトロ丸ノ内線 新宿御苑前駅 6分

東京都新宿区市谷本村町2-11

地上10階 / 地下1階

40.43坪

JR中央・総武線 市ケ谷駅 7分

東京都新宿区富久町16-5

地上11階 / 地下1階

40.17坪

東京メトロ丸ノ内線 新宿御苑前駅 7分

※表示金額はすべて「税抜き表示」となっています。 / ※間取図は現況を優先させていただきます。 / ※駐車場は建物設備としての有無のため、有の場合でも賃貸条件としての空きを保証するものではありません。 / ※掲載情報の誤りや変更、未掲載情報の掲載依頼がございましたら、お手数ですが お問い合わせフォーム よりご連絡ください。

掲載物件数:2,361件  4,255区画

お気に入りに追加