NEW

斉藤ビルディング 8階B

最終情報更新日:2026/03/12
ビルコード: 1310400288
室内例 室内例
室内例 室内例
室内例
室内例
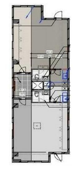
斉藤ビルディング 8階B 平面図
建物詳細

斉藤ビルディング(新宿区四谷3丁目1-4)は、最寄りの「四谷三丁目」駅から徒歩2分の賃貸オフィスビルです。

規模は地上8階・地下1階建て、竣工は1982年2月、2023年1月にリニューアルが完了しております。基準階貸室面積は約36坪、EVホールを挟んで2つの部屋があるレイアウトとなっており、設備は機械警備・個別空調・OAフロア等の仕様となっております。

最新の空室状況や賃料・賃貸条件など、お気軽にお問合せ下さい。

賃貸条件

所在階 8階
用途 事務所、店舗
面積 17.6坪 / 58.18m²
賃料 相談
共益費 相談
坪単価 -
預託金 12ヶ月
入居時期 2026年5月上旬
その他費用 償却: なし
礼金: なし
更新料・再契約料: 1ヶ月
天井高 2,350mm
トイレ 男女共用
床仕様 タイルカーペット

物件概要

所在地 東京都新宿区四谷3丁目1-4
交通
  • 東京メトロ丸ノ内線 四谷三丁目駅 2分
  • JR中央線(快速) 四ツ谷駅 8分
規模 地上8階 / 地下1階
竣工 1982年2月
耐震基準 新耐震基準
構造 鉄骨鉄筋コンクリート(SRC造)
基準階坪数 36.4坪

物件詳細・設備

エレベーター 1基
駐車場 なし
情報通信設備 光ファイバー
空調 個別空調
セキュリティ 機械警備
リニューアル履歴 2014年11月 追加耐震補強
2023年1月リニューアル

斉藤ビルディングの空室一覧

↓ 募集区画クリックで詳細情報をご覧いただけます

募集区画 面積 用途 賃料+共益費 坪単価(共益費込) 入居時期 平面図 お気に入り
NEW 8階B 17.6坪 事務所、店舗 相談 - 2026年5月上旬
6階AB 36.4坪 事務所、店舗 相談 - 即入居
5階B 17.6坪 事務所、店舗 相談 - 相談
4階B 17.6坪 事務所 相談 - 即入居

近隣の条件が近い物件

東京都新宿区荒木町6-1

地上3階建て

17.87坪 〜 19.4坪

東京メトロ丸ノ内線 四谷三丁目駅 3分

東京都新宿区荒木町6-4

地上5階建て

15.35坪

東京メトロ丸ノ内線 四谷三丁目駅 3分

東京都新宿区四谷2丁目8-8

地上10階 / 地下1階

20.04坪

東京メトロ丸ノ内線 四谷三丁目駅 7分

東京都新宿区四谷3丁目13-11

地上9階 / 地下1階

20.18坪

東京メトロ丸ノ内線 四谷三丁目駅 2分

東京都新宿区内藤町1-7

地上6階建て

15.67坪

東京メトロ丸ノ内線 四谷三丁目駅 10分

東京都新宿区四谷1丁目3-33

地上6階 / 地下1階

20.26坪

東京メトロ南北線 四ツ谷駅 1分

東京都新宿区四谷3-1

地上9階 / 地下1階

24.0坪

東京メトロ丸ノ内線 四谷三丁目駅 2分

東京都新宿区四谷2丁目1

地上7階 / 地下1階

22.1坪

東京メトロ丸ノ内線 四ツ谷駅 3分

東京都新宿区新宿1丁目35-14

地上9階建て

17.67坪

東京メトロ丸ノ内線 新宿御苑前駅 4分

東京都新宿区四谷3-9

地上10階 / 地下2階

23.29坪

東京メトロ丸ノ内線 四谷三丁目駅 1分

東京都新宿区四谷3丁目5

地上7階 / 地下1階

24.44坪

東京メトロ丸ノ内線 四谷三丁目駅 1分

東京都新宿区左門町6-17

地上7階 / 地下1階

24.05坪

東京メトロ丸ノ内線 四谷三丁目駅 2分

東京都新宿区新宿1丁目28-4

地上6階建て

15.06坪

東京メトロ丸ノ内線 新宿御苑前駅 4分

東京都千代田区麹町4丁目2-11

地上13階建て

17.53坪 〜 17.59坪

東京メトロ有楽町線 麹町駅 2分

東京都千代田区四番町4-13

地上8階 / 地下1階

19.0坪

JR中央・総武線 市ケ谷駅 3分

東京都千代田区紀尾井町4-1

地上17階 / 地下1階

16.81坪

東京メトロ丸ノ内線 赤坂見附駅 3分

※表示金額はすべて「税抜き表示」となっています。 / ※間取図は現況を優先させていただきます。 / ※駐車場は建物設備としての有無のため、有の場合でも賃貸条件としての空きを保証するものではありません。 / ※掲載情報の誤りや変更、未掲載情報の掲載依頼がございましたら、お手数ですが お問い合わせフォーム よりご連絡ください。

掲載物件数:2,339件  4,230区画

お気に入りに追加