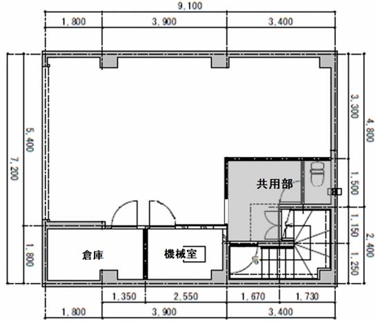
賃貸条件
| 所在階 | 地下1階 |
|---|---|
| 用途 | 事務所、店舗、倉庫 |
| 面積 | 15.8坪 / 52.23m² |
| 賃料 | 300,000円 |
| 共益費 | 賃料に含む |
| 坪単価 | 18,987円/坪 (共益費込) |
| 預託金 | 5ヶ月 |
| 入居時期 | 即入居 |
| その他費用 |
償却: なし
礼金: 1ヶ月 更新料・再契約料: 新賃料1ヶ月 |
| 天井高 | 2,400mm |
| トイレ | 男女共用 |
| その他 | スケルトン |
物件概要
| 所在地 | 東京都新宿区西新宿4丁目18-6 |
|---|---|
| 交通 |
|
| 規模 | 地上3階 / 地下1階 |
| 竣工 | 1991年12月 |
| 耐震基準 | 新耐震基準 |
| 構造 |
物件詳細・設備
| エレベーター | なし |
|---|---|
| 情報通信設備 | 光ファイバー |
東京新宿亭ホテルの空室一覧
↓ 募集区画クリックで詳細情報をご覧いただけます
| 募集区画 | 面積 | 用途 | 賃料+共益費 | 坪単価(共益費込) | 入居時期 | 平面図 | お気に入り |
|---|---|---|---|---|---|---|---|
| NEW 地下1階半地下 | 15.8坪 | 事務所、店舗、倉庫 | 300,000円 | 18,987円/坪 | 即入居 |
|
※表示金額はすべて「税抜き表示」となっています。 / ※間取図は現況を優先させていただきます。 / ※駐車場は建物設備としての有無のため、有の場合でも賃貸条件としての空きを保証するものではありません。 / ※掲載情報の誤りや変更、未掲載情報の掲載依頼がございましたら、お手数ですが お問い合わせフォーム よりご連絡ください。
掲載物件数:2,346件
4,201区画