03-6264-1890
受付時間 9:00 - 18:30 定休日 土日祝
受付時間 9:00 - 18:30 定休日 土日祝
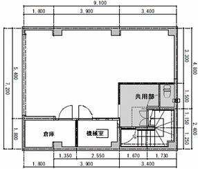
東京新宿亭ホテル 地下1階半地下
物件情報
| 所在地 | 東京都新宿区西新宿4丁目18-6 |
|---|---|
| 最寄駅 |
都営大江戸線 西新宿五丁目駅 5分 京王線 初台駅 13分 |
| 竣工 | 1991年12月 |
| 階数 | 地上3階 / 地下1階 |
| エレベーター | なし |
賃貸条件
| 募集区画 | 地下1階半地下 |
|---|---|
| 賃料 (共益費) | 300,000円(賃料に含む) |
| 敷金 /礼金 | 5ヶ月/1ヶ月 |
|
保証金
/敷引/償却 |
-/-/なし |
| 面積 | 15.8坪 |
| 入居条件 | 即入居 |