NEW

さくらビル表参道 1階~4階

最終情報更新日:2026/03/09
ビルコード: 1311303178
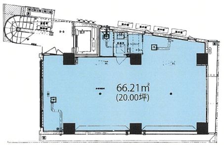
さくらビル表参道 1階~4階 平面図

賃貸条件

所在階 1階〜4階
用途 事務所、店舗
面積 83.42坪 / 275.76m²
賃料 相談
共益費 賃料に含む
坪単価 -
預託金 相談
入居時期 即入居
その他費用 礼金: 1ヶ月
更新料・再契約料: 1ヶ月
トイレ 男女別
その他 店舗:飲食相談可

物件概要

所在地 東京都渋谷区神宮前3丁目3-13
交通
  • 東京メトロ銀座線 外苑前駅 4分
  • 東京メトロ千代田線 表参道駅 6分
規模 地上4階建て
竣工 2019年9月
耐震基準 新耐震基準
構造 鉄筋コンクリート(RC造)

物件詳細・設備

エレベーター 1基

さくらビル表参道の空室一覧

↓ 募集区画クリックで詳細情報をご覧いただけます

募集区画 面積 用途 賃料+共益費 坪単価(共益費込) 入居時期 平面図 お気に入り
NEW 1階~4階 83.42坪 事務所、店舗 相談 - 即入居

近隣の条件が近い物件

東京都渋谷区神宮前3丁目1-25

地上6階 / 地下1階

80.87坪

東京メトロ銀座線 外苑前駅 5分

東京都港区六本木7丁目2-29

地上5階 / 地下1階

83.45坪

東京メトロ千代田線 乃木坂駅 2分

東京都港区赤坂8丁目5-28

地上20階 / 地下1階

84.59坪

東京メトロ半蔵門線 青山一丁目駅 2分

東京都渋谷区神宮前1丁目12-3

地上2階 / 地下1階

88.18坪

JR山手線 原宿駅 3分

東京都渋谷区神南1丁目15-1

地上6階建て

85.47坪

JR山手線 渋谷駅 8分

東京都渋谷区千駄ヶ谷5丁目18-20

地上10階 / 地下1階

84.82坪

JR山手線 代々木駅 3分

東京都港区赤坂7丁目1-16

地上11階 / 地下2階

86.36坪

東京メトロ銀座線 青山一丁目駅 6分

東京都渋谷区富ヶ谷1丁目16-4

地上4階建て

83.5坪

東京メトロ千代田線 代々木公園駅 6分

東京都渋谷区渋谷2丁目1-12

地上10階 / 地下1階

78.51坪

JR山手線 渋谷駅 7分

東京都港区赤坂6丁目14-3

地上6階 / 地下1階

81.75坪

東京メトロ千代田線 赤坂駅 4分

東京都渋谷区代々木1丁目57-1

地上8階建て

83.92坪

JR山手線 代々木駅 1分

東京都渋谷区神宮前1丁目9-18

地上7階 / 地下1階

75.0坪

東京メトロ千代田線 明治神宮前<原宿>駅 1分

東京都新宿区四谷1丁目13

地上4階 / 地下2階

84.6坪

JR中央・総武線 四ツ谷駅 3分

東京都港区赤坂9丁目5-24

地上5階 / 地下1階

78.64坪

東京メトロ千代田線 乃木坂駅 1分

東京都港区南青山5丁目9-20

地上9階建て

92.67坪 〜 92.67坪

東京メトロ銀座線 表参道駅 1分

東京都新宿区新宿1丁目12-12

地上9階 / 地下1階

85.18坪

東京メトロ丸ノ内線 新宿御苑前駅 2分

※表示金額はすべて「税抜き表示」となっています。 / ※間取図は現況を優先させていただきます。 / ※駐車場は建物設備としての有無のため、有の場合でも賃貸条件としての空きを保証するものではありません。 / ※掲載情報の誤りや変更、未掲載情報の掲載依頼がございましたら、お手数ですが お問い合わせフォーム よりご連絡ください。

掲載物件数:2,405件  4,320区画

お気に入りに追加