
賃貸条件
| 所在階 | 4階〜5階 |
|---|---|
| 用途 | 事務所、店舗 |
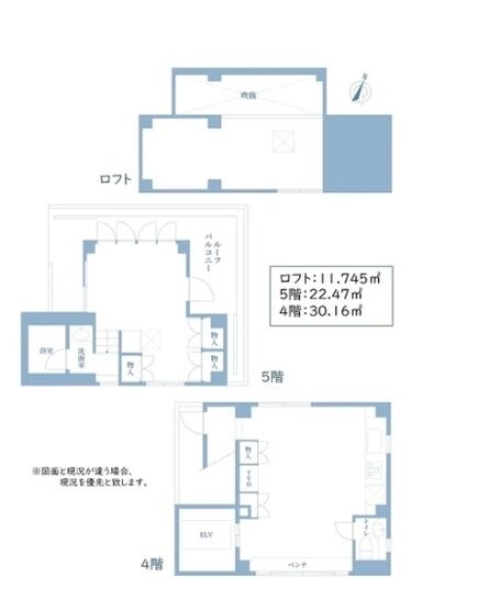
| 面積 | 15.92坪 / 52.62m² |
| 賃料 | 500,000円 |
| 共益費 | 賃料に含む |
| 坪単価 | 31,407円/坪(共益費込) |
| 預託金 | 12ヶ月 |
| 入居時期 | 即入居 |
| トイレ | 男女共用 |
| その他 | 引渡状態:現状有姿/希望業種:美容・サロン |
物件概要
| 所在地 | 東京都渋谷区神宮前5丁目25-2 |
|---|---|
| 交通 |
|
| 規模 | 地上5階 / 地下1階 |
| 竣工 | 1999年4月 |
| 耐震基準 | 新耐震基準 |
| 構造 | 鉄骨(S造) |
物件詳細・設備
| エレベーター | 1基 |
|---|---|
| 空調 | 個別空調 |
肥田野ビルの空室一覧
↓ 募集区画クリックで詳細情報をご覧いただけます
| 募集区画 | 面積 | 用途 | 賃料+共益費 | 坪単価(共益費込) | 入居時期 | 平面図 | お気に入り |
|---|---|---|---|---|---|---|---|
| 4階~5階 | 15.92坪 | 事務所、店舗 | 500,000円 | 31,407円/坪 | 即入居 |
※表⽰⾦額は、敷⾦・保証⾦などの預かり⾦を除き、別途消費税がかかります。 / ※間取図は現況を優先させていただきます。 / ※駐車場は建物設備としての有無のため、有の場合でも賃貸条件としての空きを保証するものではありません。 / ※掲載情報の誤りや変更、未掲載情報の掲載依頼がございましたら、お手数ですが お問い合わせフォームよりご連絡ください。
近隣の条件が近い物件
掲載物件数:2,387件
4,321区画




















