
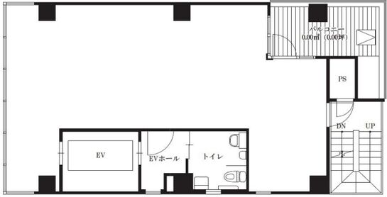
賃貸条件
| 所在階 | 7階 |
|---|---|
| 用途 | 店舗 |
| 面積 | 18.69坪 / 61.78m² |
| 賃料 | 相談 |
| 共益費 | 相談 |
| 坪単価 | - |
| 預託金 | 10ヶ月 |
| 入居時期 | 即入居 |
| その他費用 | 償却: なし 礼金: なし 更新料・再契約料: 1ヶ月 |
| トイレ | なし |
| その他 | 重飲食可/業種バッティング不可/電気容量 電灯24kVA 動力18kVA、給水 25A GV止、排水 100A* 2 cap止、ガス管口径 50A Plug止 |
物件概要
| 所在地 | 東京都江東区門前仲町2丁目4-12 |
|---|---|
| 交通 |
|
| 規模 | 地上10階建て |
| 竣工 | 2025年5月 |
| 耐震基準 | 新耐震基準 |
| 構造 | 鉄骨(S造) |
物件詳細・設備
| エレベーター | 1基 |
|---|---|
| 情報通信設備 | 光ファイバー |
※表⽰⾦額は、敷⾦・保証⾦などの預かり⾦を除き、別途消費税がかかります。 / ※間取図は現況を優先させていただきます。 / ※駐車場は建物設備としての有無のため、有の場合でも賃貸条件としての空きを保証するものではありません。 / ※掲載情報の誤りや変更、未掲載情報の掲載依頼がございましたら、お手数ですが お問い合わせフォームよりご連絡ください。
近隣の条件が近い物件
掲載物件数:2,361件
4,312区画
























